Omschrijving

Midden in het gezellige centrum van Monster op de 1e etage gelegen ruim en licht 3-kamerappartement met royaal zonnig dakterras, balkon en eigen fietsenberging.

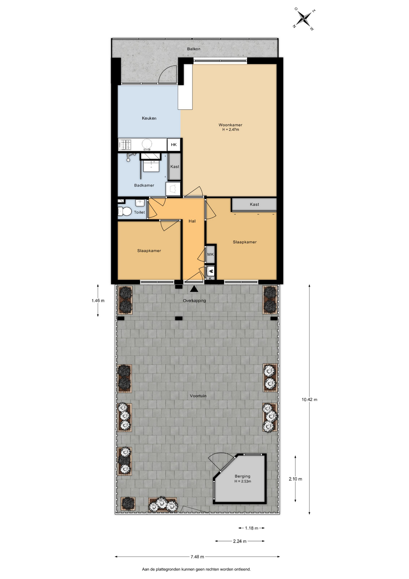
Indeling:
- Afgesloten gezamenlijke entree met bellentableau, videofooninstallatie en brievenbussen. Vanuit de gezamenlijke hal bereikt u het trappenhuis, liftinstallatie en de inpandige bergingen.

1e etage:
- Via het royale en zonnige dakterras met…

Lees meer

Kenmerken

  • Status Verkocht
  • Vraagprijs € 325.000,- kosten koper
  • Woonoppervlakte ca. 67 m2
  • Aantal slaapkamers 2
  • Bouwjaar 1987
Meer kenmerken

Documentatie per
e-mail

Laat je e-mailadres achter en ontvang de brochure direct in
je mailbox.

    Locatie

      Omschrijving

      Midden in het gezellige centrum van Monster op de 1e etage gelegen ruim en licht 3-kamerappartement met royaal zonnig dakterras, balkon en eigen fietsenberging.

      Indeling:
      - Afgesloten gezamenlijke entree met bellentableau, videofooninstallatie en brievenbussen. Vanuit de gezamenlijke hal bereikt u het trappenhuis, liftinstallatie en de inpandige bergingen.

      1e etage:
      - Via het royale en zonnige dakterras met houten berging en buiten kraantje bereik je de
      woning.
      - Entree, gang met meterkast en vaste kast met opstelplaats van de c.v.-ketel (Bosch).
      - Ruime slaapkamer met vaste schuifkast.
      - Tweede slaapkamer.
      - Toiletruimte met fonteintje.
      - Moderne geheel betegelde inpandige badkamer (circa 2014) voorzien van inloopdouche, wastafelmeubel, vaste schuifkast en wasmachine-aansluiting.
      - Heerlijk lichte en ruime woonkamer met weids uitzicht over het Westland.
      - Ruime gedateerde keuken met toegangsdeur naar het zonnige balkon.
      - Balkon is beschut gelegen met ochtend- en middagzon.

      Bijzonderheden:
      - Bouwjaar circa 1987.
      - Zeer geschikt voor alle doelgroepen vanwege de liftinstallatie.
      - Berging op de begane grond.
      - Actieve Vereniging van Eigenaren (bijdrage € 164,68 per maand).
      - Gelegen midden in het centrum van Monster met alle voorzieningen en het strand op
      loopafstand gelegen.
      - Uitvalswegen zijn tevens op korte afstand nabij.

      Bent u op zoek naar een heerlijk appartement met zonnig balkon, nabij het strand en op loopafstand van alle voorzieningen? Dit verrassende appartement zal uw verwachtingen zeker overtreffen!

      Interesse in dit huis? Schakel direct uw eigen NVM-aankoopmakelaar in. Uw NVM-aankoopmakelaar komt op voor uw belang en bespaart u tijd, geld en zorgen.
      Adressen van collega NVM- aankoopmakelaars in Haaglanden vindt u op Funda.
      Deze informatie is geheel vrijblijvend, uitsluitend voor geadresseerde bestemd en niet bedoeld als aanbod. Ten aanzien van de juistheid van de vermelde informatie kan door verkopende makelaar en haar opdrachtgever geen aansprakelijkheid worden aanvaard, noch kan aan de vermelde informatie enig recht worden ontleend.

      Kenmerken

      Overdracht

      • Status Verkocht
      • Vraagprijs € 325.000,- k.k.
      • Aanvaarding In overleg

      Bouwvorm & Onderhoud

      • Soort bouw Bestaande bouw
      • Bouwjaar 1987
      • Soort dak Plat dak
      • Onderhoud binnen Redelijk tot goed
      • Onderhoud buiten Goed

      Oppervlakten & inhoud

      • Gebruiksoppervlakte wonen ca. 67 m2
      • Oppervlakte gebouwgebonden ca. 20 m2
      • Externe bergruimte ca. 9 m2
      • Inhoud ca. 205 m3

      Indeling

      • Aantal slaapkamers 2
      • Aantal badkamers 1 badkamer
      • Badkamervoorzieningen Douche, wastafel, wasmachineaansluiting
      • Aantal woonlagen 1 woonlagen
      • Voorzieningen Tv kabel

      Energie & Installatie

      • Energielabel C
      • Isolatie Dubbel glas
      • Verwarming Cv ketel
      • Warm water Cv ketel
      • C.v.-ketel type Gas

      Tuin & Buitenruimte

      • Ligging In centrum
      • Hoofdtuin Zonneterras
      • Oppervlakte hoofdtuin ca. 78 m2
      • Kwaliteit tuin Normaal

      Bergruimte

      • Schuur / berging Inpandig
      • Aantal schuren / bergingen 1
      • Voorzieningen Voorzien van elektra

      Parkeergelegenheid

      • Parkeerfaciliteiten Openbaar parkeren
      • Garage Geen garage

      In de buurt

          Ligging

          Bouwtypes