Omschrijving

Aan de rand van de geliefde woonwijk Zeeheldenkwartier gelegen 5-kamer bovenwoning met een totaal oppervlakte van 138 m² verdeeld over 3 verdiepingen. De woning is geheel naar eigen smaak te moderniseren en is zeer centraal gelegen. Het bruisende centrum van Den Haag, met de diverse winkels, theaters, restaurants en overige uitgaansgelegenheden vindt u op loopafstand. De woning is ook gunstig gelegen ten opzichte van het openbaar vervoer…

Lees meer

Kenmerken

  • Status Beschikbaar
  • Vraagprijs € 419.000,- kosten koper
  • Woonoppervlakte ca. 138 m2
  • Aantal slaapkamers 4
  • Bouwjaar 1916
Meer kenmerken

Documentatie per
e-mail

Laat je e-mailadres achter en ontvang de brochure direct in
je mailbox.

    Locatie

      Omschrijving

      Aan de rand van de geliefde woonwijk Zeeheldenkwartier gelegen 5-kamer bovenwoning met een totaal oppervlakte van 138 m² verdeeld over 3 verdiepingen. De woning is geheel naar eigen smaak te moderniseren en is zeer centraal gelegen. Het bruisende centrum van Den Haag, met de diverse winkels, theaters, restaurants en overige uitgaansgelegenheden vindt u op loopafstand. De woning is ook gunstig gelegen ten opzichte van het openbaar vervoer en diverse uitvalswegen.

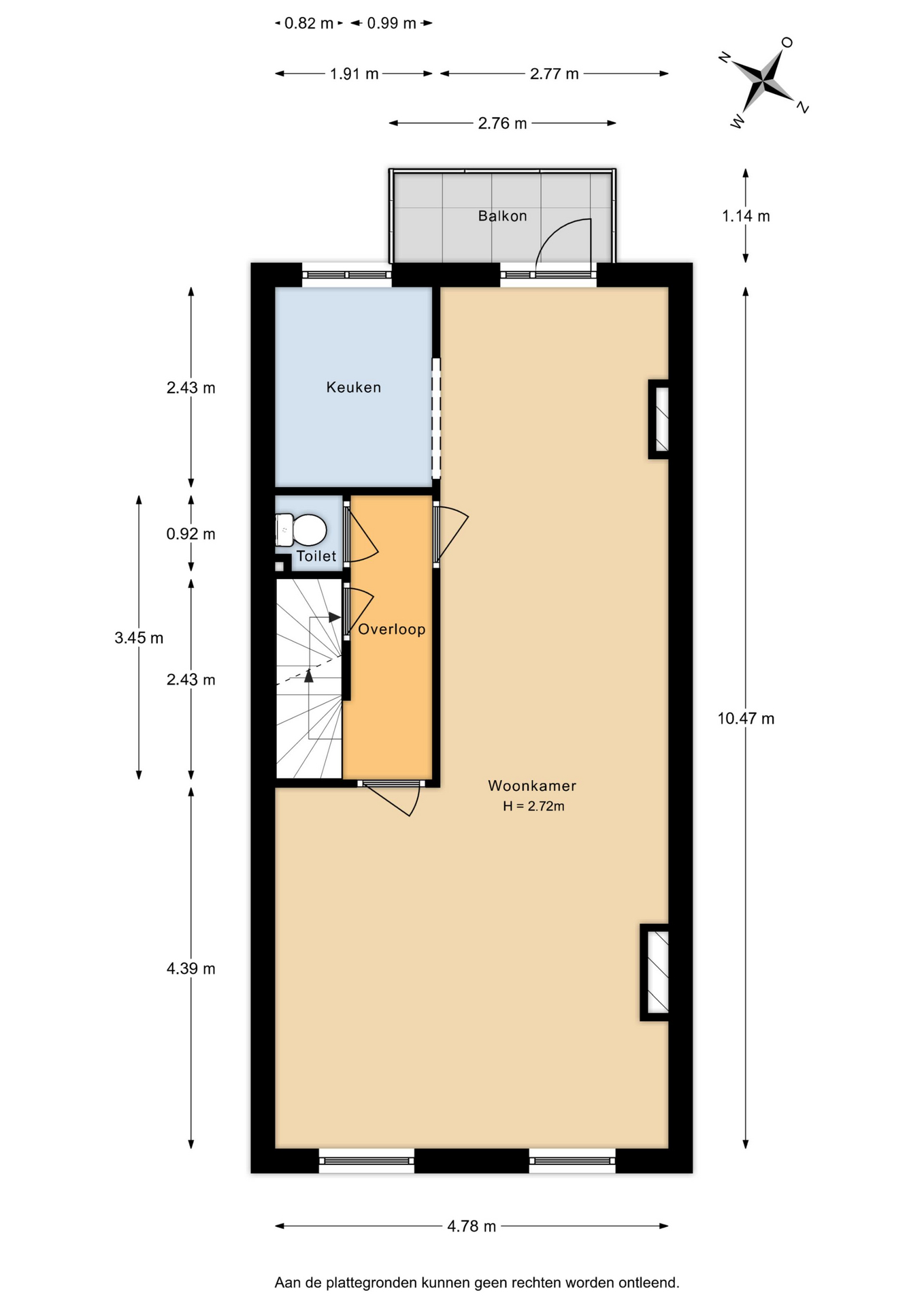
      Indeling:
      - Entree op straatniveau;
      - Hal met meterkast en trap naar de 1e etage;

      1e etage:
      - Overloop met trap naar 2e etage toilet;
      - Deur naar ruime, lichte L-vormige woonkamer van ca. 33 m²;
      - Balkon gelegen op het Zuidwesten met uitzicht op de kinderboerderij.

      2e etage:
      - Overloop met vaste trap naar de 3e etage;
      - Slaapkamer met grote raampartijen gelegen aan de voorzijde van de woning (ca. 4,31 x 4,74 m);
      - 2e slaapkamer op deze etage is gelegen aan de achterzijde (ca. 6,01 x 2,71m);
      - De 3e ruimte is bestemd voor het realiseren van een badkamer.

      3e etage:
      - Ruime overloop met toegang tot 2 slaapkamers.

      Bijzonderheden:
      - Bouwjaar 1916;
      - Gebruiksoppervlakte wonen ca. 138 m², inhoud 495 m³;
      - Gelegen op erfpachtgrond; canon en beheerskosten zijn notarieel afgekocht;
      - energielabel E geldig tot 26-08-2034;
      - Actieve Vereniging van Eigenaren, bijdrage € 159,95 per maand;
      - De woning kan naar eigen inzicht gemoderniseerd worden;
      - Zie plattegronden voor alle afmetingen en indeling;
      - De woning is afkomstig uit de huursector;
      - Er geldt een zelfbewoningsplicht van 2 jaar;
      - Oplevering 8 weken na wilsovereenstemming;
      - Transport zal plaatsvinden bij projectnotaris: Van Buttingha Wichers Notarissen te Den Haag.

      Interesse in dit huis? U kunt een eigen NVM-aankoopmakelaar inschakelen. Uw NVM-aankoopmakelaar komt op voor uw belang en kunt u tijd, geld en zorgen besparen. Adressen van collega NVM- aankoopmakelaars vindt u op Funda. Deze informatie is geheel vrijblijvend, uitsluitend voor geadresseerde bestemd en niet bedoeld als aanbod. Ten aanzien van de juistheid van de vermelde informatie kan door de verkopend makelaar en haar opdrachtgever geen aansprakelijkheid worden aanvaard, noch kan aan de vermelde informatie enig recht worden ontleend.

      Kenmerken

      Overdracht

      • Status Beschikbaar
      • Vraagprijs € 419.000,- k.k.
      • Aanvaarding In overleg

      Bouwvorm & Onderhoud

      • Soort bouw Bestaande bouw
      • Bouwjaar 1916
      • Soort dak Zadeldak
      • Onderhoud binnen Redelijk
      • Onderhoud buiten Goed

      Oppervlakten & inhoud

      • Gebruiksoppervlakte wonen ca. 138 m2
      • Oppervlakte gebouwgebonden ca. 3 m2
      • Inhoud ca. 495 m3

      Indeling

      • Aantal slaapkamers 4
      • Aantal badkamers 1 badkamer
      • Aantal woonlagen 3 woonlagen
      • Voorzieningen Tv kabel

      Energie & Installatie

      • Energielabel E
      • Verwarming Cv ketel
      • Warm water Cv ketel
      • C.v.-ketel type Gas
      • C.v.-ketel bouwjaar 2008
      • Eigendom Eigendom

      Tuin & Buitenruimte

      • Ligging Aan rustige weg, in centrum, in woonwijk

      Parkeergelegenheid

      • Parkeerfaciliteiten Openbaar parkeren, betaald parkeren, parkeervergunningen
      • Garage Geen garage

      In de buurt

          Ligging

          Bouwtypes