Omschrijving

Midden in het gezellige centrum van Poeldijk gelegen prachtig 4-kamer topappartement met riant zonnig dakterras en ruime garage aan de achterzijde. Het appartement is gesitueerd in een kleinschalig appartementencomplex.

Begane grond:
- Bellentableau met brievenbussen. Algemene hal met lift en trappenhuis.
- Toegangsdeur naar garage/berging gelegen op het terrein aan de achterzijde.

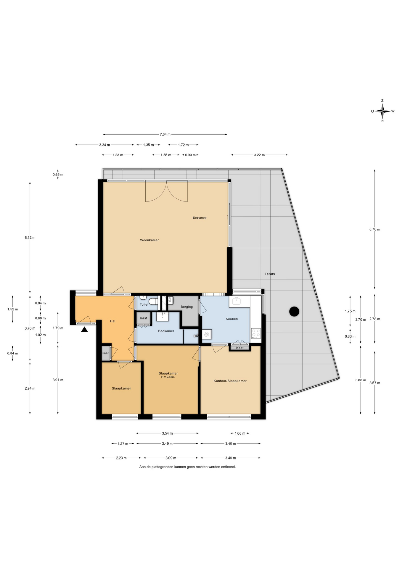
2e etage:
- Hal met…

Lees meer

Kenmerken

  • Status Beschikbaar
  • Vraagprijs € 649.000,- kosten koper
  • Woonoppervlakte ca. 109 m2
  • Aantal slaapkamers 3
  • Bouwjaar 1994
Meer kenmerken

Documentatie per
e-mail

Laat je e-mailadres achter en ontvang de brochure direct in
je mailbox.

    Locatie

      Omschrijving

      Midden in het gezellige centrum van Poeldijk gelegen prachtig 4-kamer topappartement met riant zonnig dakterras en ruime garage aan de achterzijde. Het appartement is gesitueerd in een kleinschalig appartementencomplex.

      Begane grond:
      - Bellentableau met brievenbussen. Algemene hal met lift en trappenhuis.
      - Toegangsdeur naar garage/berging gelegen op het terrein aan de achterzijde.

      2e etage:
      - Hal met videofoon, meterkast en moderne toiletruimte.
      - Royale en lichte woonkamer met grote raampartijen, laminaat vloer, airco en de schuifpui geeft toegang tot het royale en zonnige dakterras.
      - Riant en zonnig dakterras van circa 50 m2, waar je de gehele dag kunt genieten van de zon met fraai weids uitzicht over het Westland.
      - Moderne halfopen keuken in lichte kleurstelling en voorzien van een extra diep composiet aanrechtblad, diverse inbouwapparatuur en grote raampartij met zicht over het dakterras.
      - Praktische inpandige berging met tegelvloer, opstelplaats van de c.v.-ketel (Remeha Tzerra, circa 2015) en mechanische ventilatie.
      - Drie ruime slaapkamers gelegen aan de achterzijde, voorzien van een laminaat vloer en grote raampartij.
      - Moderne inpandige geheel betegelde badkamer voorzien van een inloopdouche, wastafelmeubel, designradiator en wasmachine-aansluiting.

      Bijzonderheden:
      - Bouwjaar circa 1994.
      - Woonoppervlakte circa 109 m².
      - Energielabel B.
      - Actieve VvE, bijdrage is circa € 260,- per maand. Er is een reservefonds aanwezig.
      - Gelegen in het gezellige centrum van Poeldijk met alle voorzieningen op loopafstand.
      - Uitvalswegen naar Den Haag en Rotterdam zijn tevens op korte afstand gelegen.

      Interesse in dit huis? Schakel direct uw eigen NVM-aankoopmakelaar in. Uw NVM-aankoopmakelaar komt op voor uw belang en bespaart u tijd, geld en zorgen.
      Adressen van collega NVM- aankoopmakelaars in Haaglanden vindt u op Funda.

      Deze informatie is geheel vrijblijvend, uitsluitend bestemd voor geadresseerde en niet bedoeld als aanbod. Ten aanzien van de juistheid van de vermelde informatie kan door verkopend makelaar geen aansprakelijkheid worden aanvaard, noch kan aan de vermelde informatie enig recht worden ontleend.

      Kenmerken

      Overdracht

      • Status Beschikbaar
      • Vraagprijs € 649.000,- k.k.
      • Aanvaarding In overleg

      Bouwvorm & Onderhoud

      • Soort bouw Bestaande bouw
      • Bouwjaar 1994
      • Soort dak Plat dak
      • Onderhoud binnen Goed
      • Onderhoud buiten Goed

      Oppervlakten & inhoud

      • Gebruiksoppervlakte wonen ca. 109 m2
      • Oppervlakte gebouwgebonden ca. 50 m2
      • Externe bergruimte ca. 26 m2
      • Inhoud ca. 332 m3

      Indeling

      • Aantal slaapkamers 3
      • Aantal badkamers 1 badkamer
      • Badkamervoorzieningen Wastafelmeubel, inloopdouche, wasmachineaansluiting
      • Aantal woonlagen 1 woonlagen
      • Voorzieningen Mechanische ventilatie, lift, airconditioning, schuifpui

      Energie & Installatie

      • Energielabel B
      • Isolatie Dubbel glas
      • Verwarming Cv ketel
      • Warm water Cv ketel
      • C.v.-ketel type Gas
      • C.v.-ketel bouwjaar 2015

      Tuin & Buitenruimte

      • Ligging In centrum

      Parkeergelegenheid

      • Parkeerfaciliteiten Openbaar parkeren
      • Garage Garagebox

      In de buurt

          Ligging

          Bouwtypes