Omschrijving

Scheldestraat 77 Den Haag

Leuk en ruim 5-kamerappartement in de Haagse rivierenbuurt gelegen op de tweede verdieping. De woning is gunstig gelegen ten opzichte van het uitgebreide winkelaanbod in het centrum van Den Haag en het Centraal Station. Tevens liggen de snelwegen A12, A13 en A4 om de hoek en het strand van Scheveningen bevindt zich op 15 autominuten.

Indeling:
- Open portiek met trap naar de 1e verdieping;…

Lees meer

Kenmerken

  • Status Beschikbaar
  • Vraagprijs € 289.000,- kosten koper
  • Woonoppervlakte ca. 92 m2
  • Aantal slaapkamers 4
  • Bouwjaar 1910
Meer kenmerken

Documentatie per
e-mail

Laat je e-mailadres achter en ontvang de brochure direct in
je mailbox.

    Locatie

      Omschrijving

      Scheldestraat 77 Den Haag

      Leuk en ruim 5-kamerappartement in de Haagse rivierenbuurt gelegen op de tweede verdieping. De woning is gunstig gelegen ten opzichte van het uitgebreide winkelaanbod in het centrum van Den Haag en het Centraal Station. Tevens liggen de snelwegen A12, A13 en A4 om de hoek en het strand van Scheveningen bevindt zich op 15 autominuten.

      Indeling:
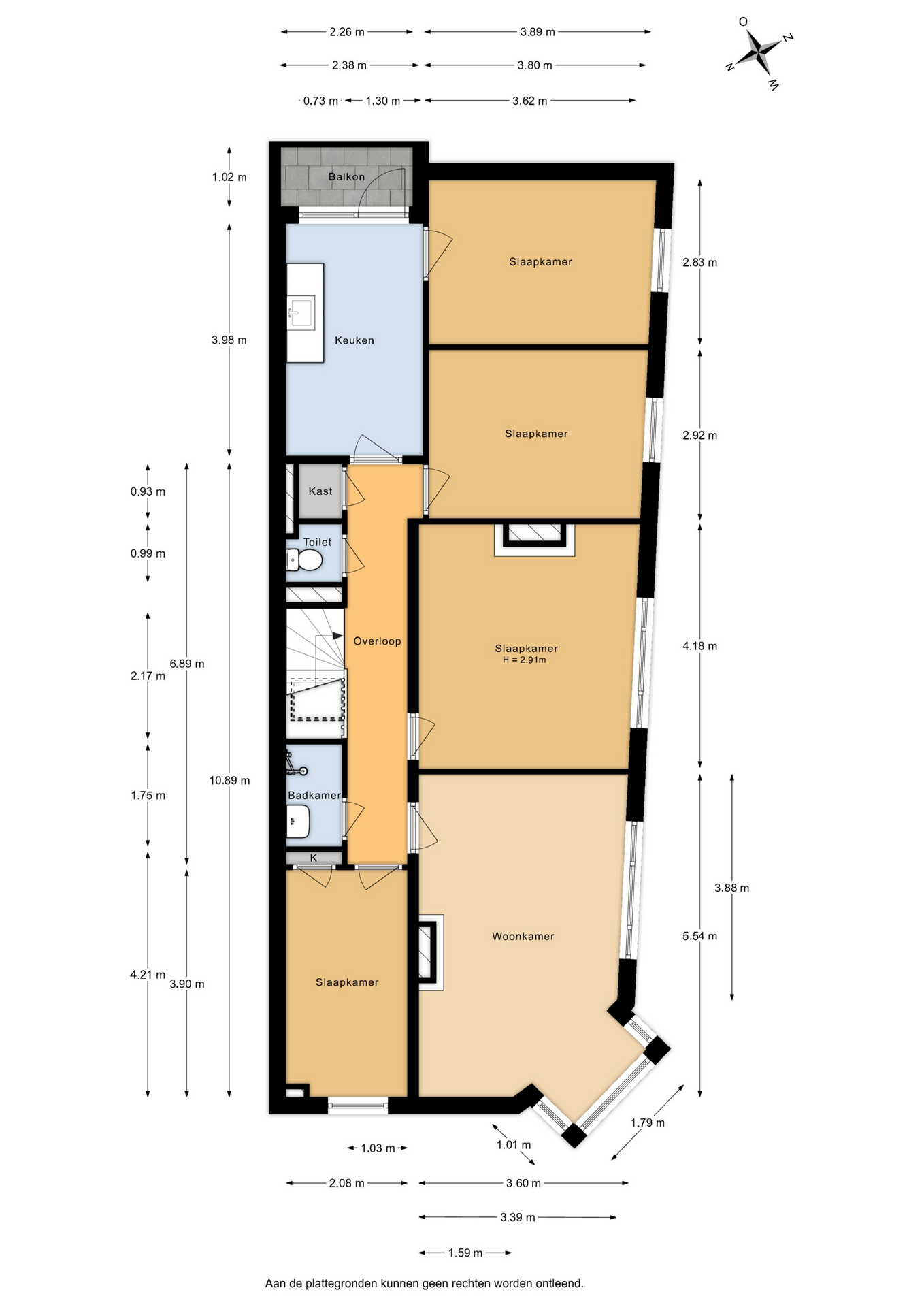
      - Open portiek met trap naar de 1e verdieping;

      Eerste verdieping:
      - Entree, hal met meterkast en trap naar de 2e etage;

      Tweede etage:
      - Overloop met vaste kast en toegang tot alle vertrekken;
      - Ruime en lichte woonkamer (ca. 5,54 x 3,60 m) met gezellige erker aan de voorzijde;
      - Achtergelegen slaapkamer (ca. 4,18 x 3,60 m);
      - Gesloten keuken (ca. 3,98 x 2,26) met eenvoudig keukenblok en wasmachineaansluiting;
      - Achtergelegen balkon (ca. 1,02 x 2,38 m) gelegen op het zuidoosten;
      - Twee slaapkamers aan de achterzijde van de woning, respectievelijk (2.92 x 3,98 m) en (2,83 x 80 m);
      - Vierde slaapkamer (ca. 3,90 x 2,08 m) aan de voorzijde van de woning met vaste kast;
      - Badkamer (ca. 1,75 x 0,73 m) voorzien van douchehoek en wastafel;
      - Toiletruimte met staand toilet;

      Bijzonderheden:
      - Bouwjaar 1910;
      - Geheel voorzien van kunststof kozijnen met dubbel glas;
      - Energielabel klasse G;
      - Het erfpachtrecht is eeuwigdurend. De canon en beheerskosten zijn afgekocht;
      - Vereniging van Eigenaren, bijdrage € 174,44 per maand;
      - De woning is momenteel niet voorzien van een verwarmingssysteem of warmwatervoorziening;
      - Oplevering 8 weken na wilsovereenstemming;
      - Notariskeuze voorbehouden aan verkoper;
      - Zelfbewoningsplicht van 2 jaar van toepassing.
      - In aanvulling op de modelkoopovereenkomst worden extra clausules opgenomen in de koopovereenkomst. Deze vindt u in de informatiebrochure;

      Interesse in dit huis? Schakel direct uw eigen NVM-aankoopmakelaar in. Uw NVM-aankoopmakelaar komt op voor uw belang en bespaart u tijd, geld en zorgen.
      Adressen van collega NVM- aankoopmakelaars in Haaglanden vindt u op Funda.

      Deze informatie is geheel vrijblijvend, uitsluitend voor geadresseerde bestemd en niet bedoeld als aanbod. Ten aanzien van de juistheid van de vermelde informatie kan door de verkopend makelaar en haar opdrachtgever geen aansprakelijkheid worden aanvaard, noch kan aan de vermelde informatie enig recht worden ontleend.

      Kenmerken

      Overdracht

      • Status Beschikbaar
      • Vraagprijs € 289.000,- k.k.
      • Aanvaarding In overleg

      Bouwvorm & Onderhoud

      • Soort bouw Bestaande bouw
      • Bouwjaar 1910
      • Soort dak Plat dak
      • Onderhoud binnen Redelijk
      • Onderhoud buiten Redelijk

      Oppervlakten & inhoud

      • Gebruiksoppervlakte wonen ca. 92 m2
      • Oppervlakte gebouwgebonden ca. 2 m2
      • Inhoud ca. 352 m3

      Indeling

      • Aantal slaapkamers 4
      • Aantal badkamers 1 badkamer
      • Badkamervoorzieningen Douche, wastafel
      • Aantal woonlagen 1 woonlagen
      • Voorzieningen Natuurlijke ventilatie

      Energie & Installatie

      • Energielabel G
      • Isolatie Dubbel glas

      Tuin & Buitenruimte

      • Ligging Aan rustige weg, in woonwijk

      Parkeergelegenheid

      • Parkeerfaciliteiten Openbaar parkeren, betaald parkeren, parkeervergunningen
      • Garage Geen garage

      In de buurt

          Ligging

          Bouwtypes