Omschrijving

Royale en vrijstaande woning met garage, eigen oprit, mooie voor-/zij en achtertuin, gelegen op unieke locatie van Monster nabij verschillende sportfaciliteiten, bibliotheek, scholen, winkelcentrum en strand gelegen.

Indeling:
-entree, hal met meterkast, fraaie composiet marmeren plavuizenvloer, vloerverwarming en open hardhouten trapopgang,
-geheel betegeld duoblok toilet met fonteintje, zijentree met garderobe en…

Lees meer

Kenmerken

  • Status Beschikbaar
  • Vraagprijs € 775.000,- kosten koper
  • Woonoppervlakte ca. 188 m2
  • Aantal slaapkamers 4
  • Bouwjaar 1965
Meer kenmerken

Documentatie per
e-mail

Laat je e-mailadres achter en ontvang de brochure direct in
je mailbox.

    Locatie

      Omschrijving

      Royale en vrijstaande woning met garage, eigen oprit, mooie voor-/zij en achtertuin, gelegen op unieke locatie van Monster nabij verschillende sportfaciliteiten, bibliotheek, scholen, winkelcentrum en strand gelegen.

      Indeling:
      -entree, hal met meterkast, fraaie composiet marmeren plavuizenvloer, vloerverwarming en open hardhouten trapopgang,
      -geheel betegeld duoblok toilet met fonteintje, zijentree met garderobe en kast voorzien van geiser,
      -royaal uitgebouwde woonkamer voorzien van grote centrale openhaard met sfeervolle schouw, compositiemarmeren plavuizenvloer, vloerverwarming, sierplinten, convectorput en elektrische zonneschermen,
      -lichte tuinkamer met compositiemarmeren plavuizen, grote ramen en schuifpui naar de achtertuin,
      -moderne keuken (ca. 2008) in L-vormige opstelling voorzien van diverse inbouwapparatuur, close-in-boiler, vloerverwarming en loopdeur naar garage,
      -inpandige garage met lichtkoepel, radiator en elektrische garagedeur,
      -bijkeuken met lichtkoepel, plavuizenvloer, wasmachine-/drogeraansluiting, schrobput, wasbak, radiator, pomp voor vloerverwarming, opstelplaats cv-ketel en loopdeur naar de achtertuin.

      Vrije tuin rondom voorzien van diepe vijver, zonneterras, gazon, vaste planten en vrijstaand houten tuinhuisje. Zijtuin met veel groen en buitenkraan.

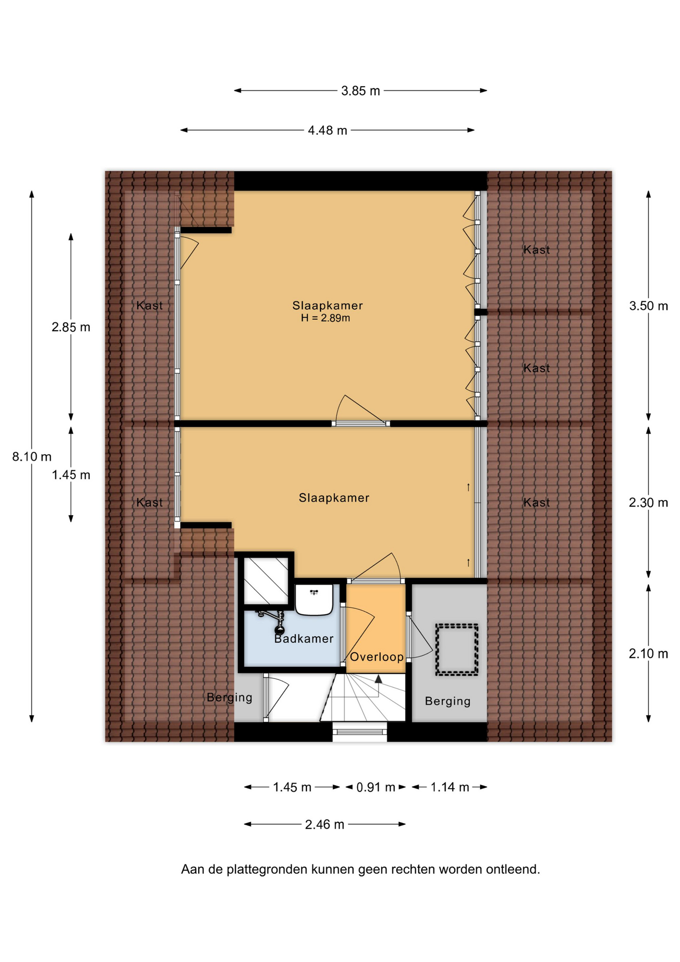
      1e etage:
      -overloop met kleine trapkast, zijraam en vaste trapopgang,
      -2 ruime slaapkamers (oorspronkelijk 4 kamers) waarvan 1 met toegang tot royaal dakterras,
      -geheel betegelde badkamer voorzien van groot ligbad, douchecabine (stoomfunctie werkt niet), dubbel wastafelmeubel, 2e zwevend toilet en loopdeur naar de ouderslaapkamer,

      2e etage:
      -ruime bergkast met Velux dakraam,
      -2e volledig betegelde badkamer met douche en wastafel,
      -studeerkamer met dakkapel
      -slaapkamer met dakkapel.

      Bijzonderheden:
      -Gehele begane grond vloer is voorzien van een fraaie marmeren plavuizenvloer met vloerverwarming (m.u.v. het kleine halletje bij de zijentree).
      -Gehele woning is voorzien van hardhouten kozijnen met dubbel glas. Alle binnenkozijnen en deuren zijn van Merbau hardhout.
      -Het buitenschilderwerk is in ca. 2011 voor het laatst uitgevoerd. In ca. 1995 zijn de goten en het geheel dak vernieuwd. De buitengevels zijn in ca. 1995 gestraald en geïmpregneerd.
      -Muurisolatie en dubbel glas

      De woning is gelegen nabij tennisvereniging Monster, basisschool De Bongerd, de openbare bibliotheek en het winkelcentrum. Strand, zee en duinen zijn op loopafstand van de woning gelegen. Resumerend: Groen gelegen vrijstaande woning met garage, eigen oprit, mooie voor-/zij en achtertuin biedt veel privacy en is zeker uw bezichtiging waard!!

      Kenmerken

      Overdracht

      • Status Beschikbaar
      • Vraagprijs € 775.000,- k.k.
      • Aanvaarding In overleg

      Bouwvorm & Onderhoud

      • Soort woonhuis Vrijstaande woning
      • Soort bouw Bestaande bouw
      • Bouwjaar 1965
      • Soort dak Zadeldak
      • Onderhoud binnen Goed
      • Onderhoud buiten Goed

      Oppervlakten & inhoud

      • Gebruiksoppervlakte wonen ca. 188 m2
      • Oppervlakte gebouwgebonden ca. 13 m2
      • Overige inpandige ruimte ca. 18 m2
      • Inhoud ca. 711 m3
      • Perceeloppervlakte ca. 402 m2

      Indeling

      • Aantal slaapkamers 4
      • Aantal badkamers 2 badkamers
      • Badkamervoorzieningen Ligbad, toilet, douche, dubbele wastafel, douche, wastafel
      • Aantal woonlagen 3 woonlagen
      • Voorzieningen Buitenzonwering

      Energie & Installatie

      • Energielabel D
      • Isolatie Muurisolatie, dubbel glas
      • Verwarming Cv ketel, open haard, vloerverwarming gedeeltelijk
      • Warm water Gasboiler eigendom
      • C.v.-ketel type Gas
      • C.v.-ketel bouwjaar 2022
      • Eigendom Eigendom

      Tuin & Buitenruimte

      • Ligging Vrij uitzicht, beschutte ligging
      • Hoofdtuin Tuin rondom
      • Achterom 1
      • Kwaliteit tuin Fraai aangelegd

      Bergruimte

      • Schuur / berging Vrijstaand hout
      • Aantal schuren / bergingen 1
      • Voorzieningen Voorzien van elektra

      Parkeergelegenheid

      • Parkeerfaciliteiten Openbaar parkeren
      • Garage Aangebouwd steen

      In de buurt

          Ligging

          Bouwtypes