Op basis van
847 reviews
Wateringen
Plein 64
€ 335.000,-
B
63 m2
1
Omschrijving
Ben je op zoek naar een instapklaar en modern afgewerkt 3-kamerappartement met zonnig balkon (ZW) gelegen in het gezellige centrum van Wateringen? Dan is deze woning zeker een bezichtiging waard! Het appartement is gelegen op de eerste etage van een net appartementencomplex en beschikt over een eigen (fietsen)berging op de begane grond en voldoende parkeergelegenheid achter het complex. De woning is centraal gelegen nabij winkels,…
Kenmerken
- Status Beschikbaar
- Vraagprijs € 335.000,- kosten koper
- Woonoppervlakte ca. 63 m2
- Aantal slaapkamers 1
- Bouwjaar 1976
Documentatie per 
e-mail
                        Laat je e-mailadres achter en ontvang de brochure direct in 
je mailbox.
Locatie
Omschrijving
Ben je op zoek naar een instapklaar en modern afgewerkt 3-kamerappartement met zonnig balkon (ZW) gelegen in het gezellige centrum van Wateringen? Dan is deze woning zeker een bezichtiging waard! Het appartement is gelegen op de eerste etage van een net appartementencomplex en beschikt over een eigen (fietsen)berging op de begane grond en voldoende parkeergelegenheid achter het complex. De woning is centraal gelegen nabij winkels, openbaar vervoer, sportmogelijkheden en uitvalswegen.
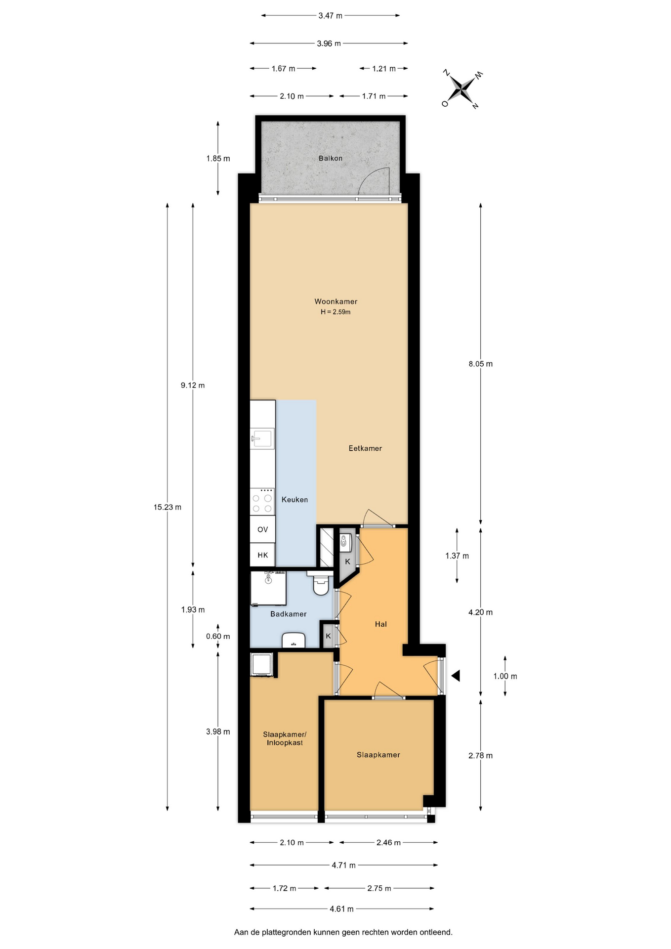
Indeling:
Begane grond:
- Centrale afgesloten entree met brievenbussen- en bellentableau en trappenhuis naar de eerste etage;
- Eigen (fietsen)berging (ca. 2,07 x 1,47 m) met elektra op de begane grond;
Eerste verdieping:
- Entree woning op de eerste verdieping;
- Ruime hal met meterkast (in 2021 vernieuwd), vaste kast met CV-ketel  en toegang tot alle vertrekken;
- Heerlijk lichte en ruime woonkamer (ca. 8,05 x 3,96 m) voorzien van laminaatvloer. Vanaf de woonkamer is er toegang tot het zonnige balkon (ZW) aan de achterzijde van de woning;
- Moderne open keuken (ca. 4,20 x 1,67 m) in rechte opstelling, welke is voorzien van een composiet werkblad en diverse inbouwapparatuur, waaronder o.a. een koel-/vriescombinatie, vaatwasser, combimagnetron, inductiekookplaat en afzuigkap. De keuken is in 2021 vernieuwd;
- Ruime slaapkamer (ca 2,78 x 2,46 m) aan de voorzijde van de woning voorzien van laminaatvloer;
- Tweede kamer, welke momenteel in gebruik is als inloopkast. Hier bevindt zich tevens de wasmachineaansluiting. De oorspronkelijke slaapkamer is deels gesplitst om deze extra kamer te realiseren;
- De moderne badkamer (2024) is voorzien van een inloopdouche, wastafelmeubel, wandcloset en elektrische handdoekenradiator. De badkamer is strak afgewerkt met een gestukt plafond met inbouwspots;
- Het zonnige balkon is gelegen op het zuidwesten, waardoor je hier van het middag- en avondzonnetje kunt genieten. Het balkon is tevens voorzien van elektrisch zonnescherm; 
Bijzonderheden:
- Gebruiksoppervlakte wonen ca. 63 m²;
- Bouwjaar ca. 1976;
- Actieve Vereniging van Eigenaars, bijdrage € 267,- per maand;
- De woning is grotendeels voorzien van dubbel glas. In 2026 worden vanuit de VvE alle kozijnen in de woning vervangen door kunststof kozijnen met triple glas.  Dit zal plaatsvinden in het eerste of 2e kwartaal van 2026;
- De woning beschikt over energielabel B;
- Eigen (fietsen)berging (ca. 2,07 x 1,47 m) in de onderbouw;
- De dakbedekking van het complex is recentelijk vervangen;
- Gelegen op eigen grond;
- Achter het complex is ruim voldoende parkeergelegenheid aanwezig;
- Oplevering in overleg;
- In aanvulling op de modelkoopovereenkomst worden extra clausules opgenomen in de koopovereenkomst. Deze vindt u in de informatiebrochure;
Kortom, bent u op zoek naar een modern en instapklaar appartement met zonnig balkon (ZW) middenin het gezellige centrum van Wateringen? Dan is deze woning zeker uw bezichtiging waard!
Interesse in dit huis? U kunt een eigen NVM-aankoopmakelaar inschakelen. Uw NVM-aankoopmakelaar komt op voor uw belang en kan u tijd, geld en zorgen besparen. Adressen van collega NVM-aankoopmakelaars vindt u op Funda.
Deze informatie is geheel vrijblijvend, uitsluitend voor geadresseerde bestemd en niet bedoeld als aanbod. Ten aanzien van de juistheid van de vermelde informatie kan door de verkopend makelaar en haar opdrachtgever geen aansprakelijkheid worden aanvaard, noch kan aan de vermelde informatie enig recht worden ontleend.
Kenmerken
Overdracht
- Status Beschikbaar
- Vraagprijs € 335.000,- k.k.
- Aanvaarding In overleg
Bouwvorm & Onderhoud
- Soort bouw Bestaande bouw
- Bouwjaar 1976
- Soort dak Plat dak
- Onderhoud binnen Goed
- Onderhoud buiten Goed
Oppervlakten & inhoud
- Gebruiksoppervlakte wonen ca. 63 m2
- Oppervlakte gebouwgebonden ca. 6 m2
- Externe bergruimte ca. 3 m2
- Inhoud ca. 203 m3
Indeling
- Aantal slaapkamers 1
- Aantal badkamers 1 badkamer
- Badkamervoorzieningen Wastafelmeubel, inloopdouche
- Aantal woonlagen 1 woonlagen
- Voorzieningen Mechanische ventilatie, tv kabel, buitenzonwering, glasvezel kabel
Energie & Installatie
- Energielabel B
- Isolatie Gedeeltelijk dubbel glas
- Verwarming Cv ketel
- Warm water Cv ketel
- C.v.-ketel type Gas
- C.v.-ketel bouwjaar 2023
- Eigendom Eigendom
Tuin & Buitenruimte
- Ligging In centrum, vrij uitzicht
Bergruimte
- Aantal schuren / bergingen 1
Parkeergelegenheid
- Parkeerfaciliteiten Openbaar parkeren
- Garage Geen garage
In de buurt
Ligging
Bouwtypes
Interesse?
Vul het formulier in om een bezichtiging te plannen.
 
                                     
                                     
                                     
                                     
                                     
                                     
                                     
                                     
                                     
                                     
                                     
                                     
                                     
                                     
                                     
                                     
                                     
                                     
                                     
                                     
                                     
                                     
                                     
                                     
                                     
                                     
                                     
                                     
                                     
                                     
                                     
                                     
                                     
                                     
                                     
                                     
                                     
                                     
                                     
                                     
                                     
                                     
                                