Omschrijving

Voor deze woning geldt de eerste vier weken van het verkooptraject een voorrangsregeling. Deze regeling loopt tot en met 13 november 2025.

De eerste 4 weken dat de woning in verkoop staat, krijg je als sociale huurder van alle woningcorporaties in de gemeente Den Haag voorrang op andere kopers. Ben je geen sociale huurder? Dan krijg je alleen voorrang als je aan bepaalde inkomensvoorwaarden voldoet. Voor de verdere voorwaarden…

Lees meer

Kenmerken

  • Status Binnenkort te koop
  • Vraagprijs Prijs op aanvraag
  • Woonoppervlakte ca. 77 m2
  • Aantal slaapkamers 2
  • Bouwjaar 1979
Meer kenmerken

Documentatie per
e-mail

Laat je e-mailadres achter en ontvang de brochure direct in
je mailbox.

    Locatie

      Omschrijving

      Voor deze woning geldt de eerste vier weken van het verkooptraject een voorrangsregeling. Deze regeling loopt tot en met 13 november 2025.

      De eerste 4 weken dat de woning in verkoop staat, krijg je als sociale huurder van alle woningcorporaties in de gemeente Den Haag voorrang op andere kopers. Ben je geen sociale huurder? Dan krijg je alleen voorrang als je aan bepaalde inkomensvoorwaarden voldoet. Voor de verdere voorwaarden zie onderaan de tekst.

      Licht en ruim 3-kamerappartement in groen Waldeck met zonnig balkon.

      In het rustige en groene Waldeck ligt dit 3-kamerappartement op de eerste verdieping van een kleinschalig appartementencomplex. De woning beschikt over een zonnig balkon op het zuidoosten, een eigen berging én een gunstige ligging nabij winkels, openbaar vervoer én het strand van Kijkduin.
      Ligging:
      De woning ligt op steenworp afstand van winkelcentra Loosduinen en Savornin Lohmanplein, diverse openbaar vervoersverbindingen en recreatiemogelijkheden zoals het strand, de boulevard van Kijkduin en park Meer en Bos

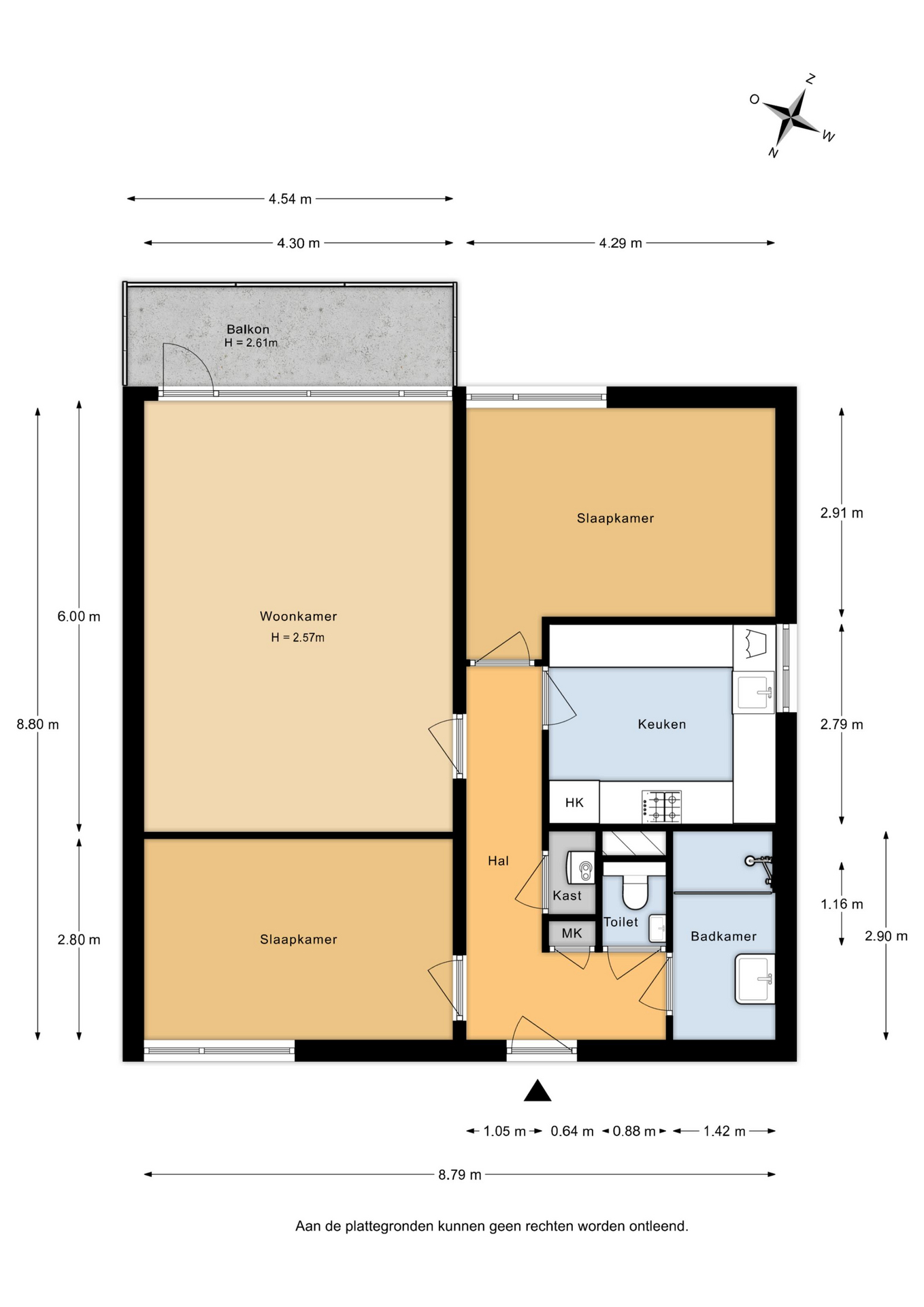
      Indeling:
      - Centrale entree met bellentableau en brievenbussen en trap naar de eerste verdieping;
      - Entree woning, hal met meterkast, separaat toilet en bergkast met opstelplaats voor de cv-ketel;
      - Ruime en lichte woonkamer (ca. 6.00 x 4,30 m) met toegang tot het balkon;
      - Zonnig balkon (ca. 1,44 x 4,54 m) gelegen op het zuidoosten;
      - Gesloten keuken (ca. 2,79 x 3,20 m) met diverse inbouwapparatuur: koelkast, vriezer, magnetron, oven, 4 pits gaskookplaat, afzuigkap, vaatwasser en aansluiting voor de wasmachine;
      - Slaapkamer (ca. 4,29 x 2,91 m) gelegen aan de voorzijde van de woning;
      - Slaapkamer (ca. 4,30 x 2,80 m) gelegen aan de achterzijde van de woning;
      - De badkamer (ca. 2,90 x 1,42 m) voorzien van douche en wastafel.

      Bijzonderheden:
      - Bouwjaar 1979;
      - Gebruiksoppervlakte wonen ca. 77 m²; inhoud ca. 245 m³;
      - Gelegen op erfpachtgrond; canon en beheerkosten zijn eeuwigdurend afgekocht;
      - Actieve VvE, de bijdrage is € 226,85 per maand;
      - De woning is geheel voorzien van houten kozijnen met dubbel en enkel glas;
      - Verwarming en warm water middels CV-ketel, Intergas;
      - Energielabel klasse D, geldig tot 09-07-2035;
      - Oplevering ca. 8 weken na wilsovereenstemming;
      - Transport zal plaatsvinden bij projectnotaris Van Buttingha Wichers Notarissen;
      - Zelfbewoningsplicht van toepassing.

      Voorwaarden voorrangsregeling:
      In de eerste vier weken geldt de voorrangsregeling.
      1. Degene die een sociale huurwoning in de gemeente Den Haag achterlaat of, als er geen huurder meedoet, aan
      2. Degene die past in de inkomensgroep. (Als je een éénpersoonshuishouden met een inkomen van maximaal € 67.365,- hebt of een meerpersoonshuishouden met een inkomen van maximaal € 89.820,-.)

      Als geïnteresseerde doet u een voorstel van minimaal de taxatiewaarde. Na verloop van 4 weken zullen wij alle voorstellen bekijken, met in achtneming van bovenstaande en u uitsluitstel geven of u de koper bent.

      Als de woning niet binnen de eerste 4 weken wordt verkocht, dan komt het huis in de gewone verkoop en kan iedereen, ook niet-huurders in andere inkomensgroepen, bieden.

      Om een afspraak voor een bezichtiging in te kunnen plannen, dient u bewijs bij ons aan te leveren dat u aan de voorrangsregeling voldoet.

      Interesse in dit huis? U kunt een eigen NVM-aankoopmakelaar inschakelen. Uw NVM-aankoopmakelaar komt op voor uw belang en kunt u tijd, geld en zorgen besparen. Adressen van collega NVM- aankoopmakelaars vindt u op Funda. Deze informatie is geheel vrijblijvend, uitsluitend voor geadresseerde bestemd en niet bedoeld als aanbod. Ten aanzien van de juistheid van de vermelde informatie kan door de verkopend makelaar en haar opdrachtgever geen aansprakelijkheid worden aanvaard, noch kan aan de vermelde informatie enig recht worden ontleend.

      Kenmerken

      Overdracht

      • Status Binnenkort te koop
      • Vraagprijs Prijs op aanvraag
      • Aanvaarding In overleg

      Bouwvorm & Onderhoud

      • Soort bouw Bestaande bouw
      • Bouwjaar 1979
      • Soort dak Plat dak
      • Onderhoud binnen Redelijk
      • Onderhoud buiten Redelijk tot goed

      Oppervlakten & inhoud

      • Gebruiksoppervlakte wonen ca. 77 m2
      • Oppervlakte gebouwgebonden ca. 6 m2
      • Externe bergruimte ca. 7 m2
      • Inhoud ca. 245 m3

      Indeling

      • Aantal slaapkamers 2
      • Aantal badkamers 1 badkamer
      • Badkamervoorzieningen Douche, wastafel
      • Aantal woonlagen 1 woonlagen
      • Voorzieningen Tv kabel

      Energie & Installatie

      • Energielabel D
      • Isolatie Dubbel glas
      • Verwarming Cv ketel
      • Warm water Cv ketel
      • C.v.-ketel type Gas
      • Eigendom Eigendom

      Tuin & Buitenruimte

      • Ligging Aan rustige weg, in woonwijk

      Bergruimte

      • Aantal schuren / bergingen 1
      • Voorzieningen Voorzien van elektra

      Parkeergelegenheid

      • Parkeerfaciliteiten Openbaar parkeren
      • Garage Geen garage

      In de buurt

          Ligging

          Bouwtypes