Omschrijving

Dit zeer lichte 3-kamer appartement met balkon op de tweede verdieping gelegen wordt nu te koop aangeboden! De woning is instapklaar en ligt midden in het gezellige centrum van Monster.

Begane grond:
- Entree, bellentableau met brievenbussen en trapopgang naar de 1e en 2e verdieping.

2e verdieping:
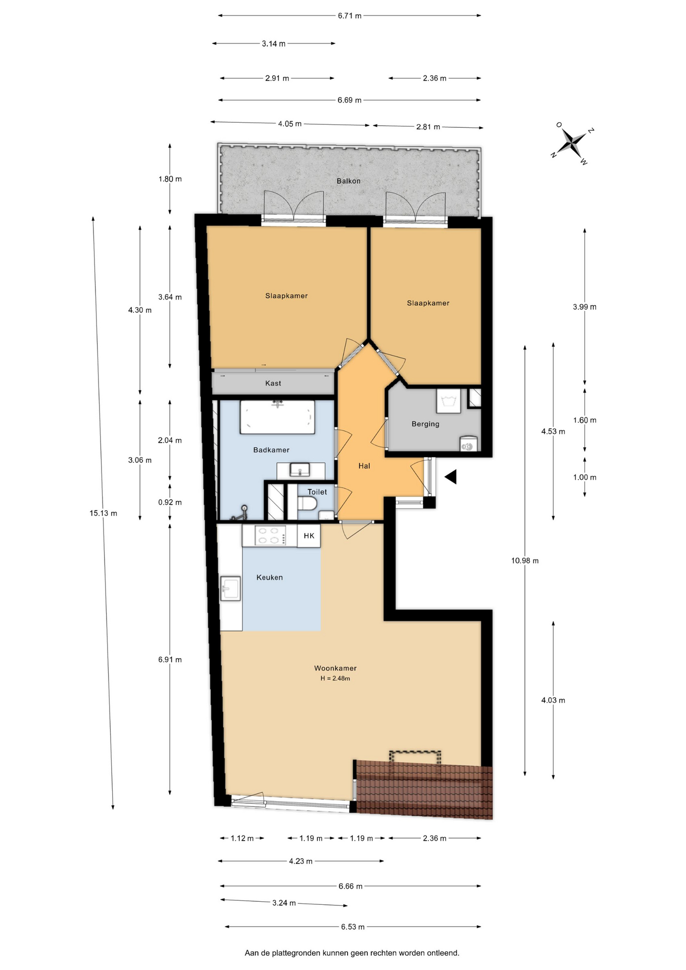
- Ruime hal met intercom, toiletruime en toegang tot de verschillende vertrekken.
- Betegelde toiletruimte…

Lees meer

Kenmerken

  • Status Beschikbaar
  • Vraagprijs € 400.000,- kosten koper
  • Woonoppervlakte ca. 85 m2
  • Aantal slaapkamers 2
  • Bouwjaar 1997
Meer kenmerken

Documentatie per
e-mail

Laat je e-mailadres achter en ontvang de brochure direct in
je mailbox.

    Locatie

      Omschrijving

      Dit zeer lichte 3-kamer appartement met balkon op de tweede verdieping gelegen wordt nu te koop aangeboden! De woning is instapklaar en ligt midden in het gezellige centrum van Monster.

      Begane grond:
      - Entree, bellentableau met brievenbussen en trapopgang naar de 1e en 2e verdieping.

      2e verdieping:
      - Ruime hal met intercom, toiletruime en toegang tot de verschillende vertrekken.
      - Betegelde toiletruimte met fonteintje.
      - Zeer lichte woonkamer aan de voorzijde gelegen met frans balkon en open woonkeuken. De gehele ruimte is voorzien van een laminaatvloer.
      - Open woonkeuken in lichte kleurstelling met L-vormig aanrechtblad. De keuken is voorzien van diverse inbouwapparatuur, waaronder: koelkast, vriezer, combi-magnetron, vaatwasser, inductiekookplaat en afzuigkap.
      - Geheel betegelde, inpandige badkamer voorzien van spotjes, ligbad, inloopdouche, wastafelmeubel, spiegel en design-radiator.
      - Twee ruime slaapkamers waarvan 1 met vaste kast en toegang tot het zonnige balkon. Tevens is 1 van beide slaapkamers voorzien van een airco.
      - Berging met opstelplaats van de CV-ketel (Remeha Avanta, 2012) en wasmachine-aansluiting.

      Bijzonderheden:
      - Bouwjaar 1997.
      - Woonoppervlakte ca. 85 m2.
      - Actieve VVE, waarvan de bijdrage € 91,- per maand.
      - Geheel voorzien van dubbel glas.
      - Het schilderwerk aan de buitenzijde is in ca. 2025 uitgevoerd. Tevens zijn de boeidelen vervangen.
      - Gelegen in het gezellige centrum van Monster, ook zijn het strand en de uitvalswegen op korte afstand.
      - Voldoende parkeergelegenheid nabij de woning.
      - Eigen fietsenberging op de begane grond.
      - De woning is in 2017 volledig gemoderniseerd, waarbij o.a. de keuken, het toilet en de badkamer zijn vernieuwd.
      - Oplevering in overleg, voorkeur Q4 2026.

      Kortom, ben jij op zoek naar je eerste woning in het centrum van Monster, dan is deze woning zeker je bezichtiging waard!

      Interesse in dit huis? Schakel direct uw eigen NVM-aankoopmakelaar in. Uw NVM-aankoopmakelaar komt op voor uw belang en bespaart u tijd, geld en zorgen.

      Adressen van collega NVM- aankoopmakelaars in Haaglanden vindt u op Funda.
      Deze informatie is geheel vrijblijvend, uitsluitend bestemd voor geadresseerde en niet bedoeld als aanbod. Ten aanzien van de juistheid van de vermelde informatie kan door verkopend makelaar geen aansprakelijkheid worden aanvaard, noch kan aan de vermelde informatie enig recht worden ontleend.

      Kenmerken

      Overdracht

      • Status Beschikbaar
      • Vraagprijs € 400.000,- k.k.
      • Aanvaarding In overleg

      Bouwvorm & Onderhoud

      • Soort bouw Bestaande bouw
      • Bouwjaar 1997
      • Soort dak Plat dak
      • Onderhoud binnen Goed
      • Onderhoud buiten Goed

      Oppervlakten & inhoud

      • Gebruiksoppervlakte wonen ca. 85 m2
      • Oppervlakte gebouwgebonden ca. 12 m2
      • Externe bergruimte ca. 5 m2
      • Inhoud ca. 269 m3

      Indeling

      • Aantal slaapkamers 2
      • Aantal badkamers 1 badkamer
      • Badkamervoorzieningen Ligbad, wastafelmeubel, inloopdouche
      • Aantal woonlagen 1 woonlagen
      • Voorzieningen Mechanische ventilatie, rolluiken, tv kabel, airconditioning, glasvezel kabel

      Energie & Installatie

      • Energielabel B
      • Isolatie Dubbel glas
      • Verwarming Cv ketel
      • Warm water Cv ketel
      • C.v.-ketel type Gas
      • C.v.-ketel bouwjaar 2012
      • Eigendom Eigendom

      Tuin & Buitenruimte

      • Ligging In centrum

      Bergruimte

      • Schuur / berging Box
      • Aantal schuren / bergingen 1

      Parkeergelegenheid

      • Parkeerfaciliteiten Openbaar parkeren
      • Garage Geen garage

      In de buurt

          Ligging

          Bouwtypes