Omschrijving

Strandliefhebbers opgelet! Deze prachtige jaren-30 woning met 4 slaapkamers, serre en dubbele berging, op loopafstand van het centrum van Monster en het strand kan uw nieuwe thuis worden.

Indeling:

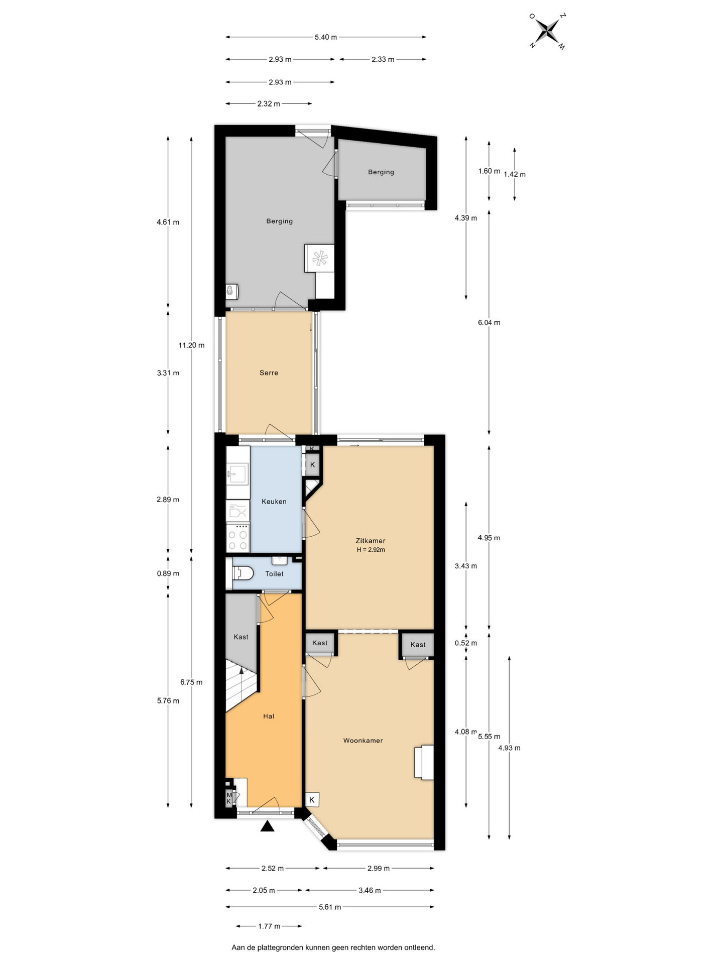
Begane grond:
- Via de keurig aangelegde voortuin bereikt u de entree van de woning.
- Ruime hal met trapopgang naar de 1e etage en toegang tot de sfeervolle woonkamer met erker aan de voorzijde.
- Half…

Lees meer

Kenmerken

  • Status Beschikbaar
  • Vraagprijs € 450.000,- kosten koper
  • Woonoppervlakte ca. 124 m2
  • Aantal slaapkamers 3
Meer kenmerken

Documentatie per
e-mail

Laat je e-mailadres achter en ontvang de brochure direct in
je mailbox.

    Locatie

      Omschrijving

      Strandliefhebbers opgelet! Deze prachtige jaren-30 woning met 4 slaapkamers, serre en dubbele berging, op loopafstand van het centrum van Monster en het strand kan uw nieuwe thuis worden.

      Indeling:

      Begane grond:
      - Via de keurig aangelegde voortuin bereikt u de entree van de woning.
      - Ruime hal met trapopgang naar de 1e etage en toegang tot de sfeervolle woonkamer met erker aan de voorzijde.
      - Half betegelde toiletruimte met hangend toilet en fonteintje.
      - De woonkamer is voorzien van een pvc-vloer en in de voorkamer staat een gezellige houtkachel. Via de doorgang bereikt u de achterkamer met zithoek en schuifpui naar de tuin.
      - Via de deur bereikt u de keuken met diverse inbouwapparatuur, waaronder inductiekookplaat, vaatwasser en oven. De keuken is in 2022 vervangen.
      - Via de achterdeur bereikt u de serre, voorzien van plavuizen met vloerverwarming en screen.
      - Twee geschakelde bergingen met elektra en verwarming, waarvan 1 voorzien van opstelplaats van de CV-ketel (Remeha Avanta, 2016).

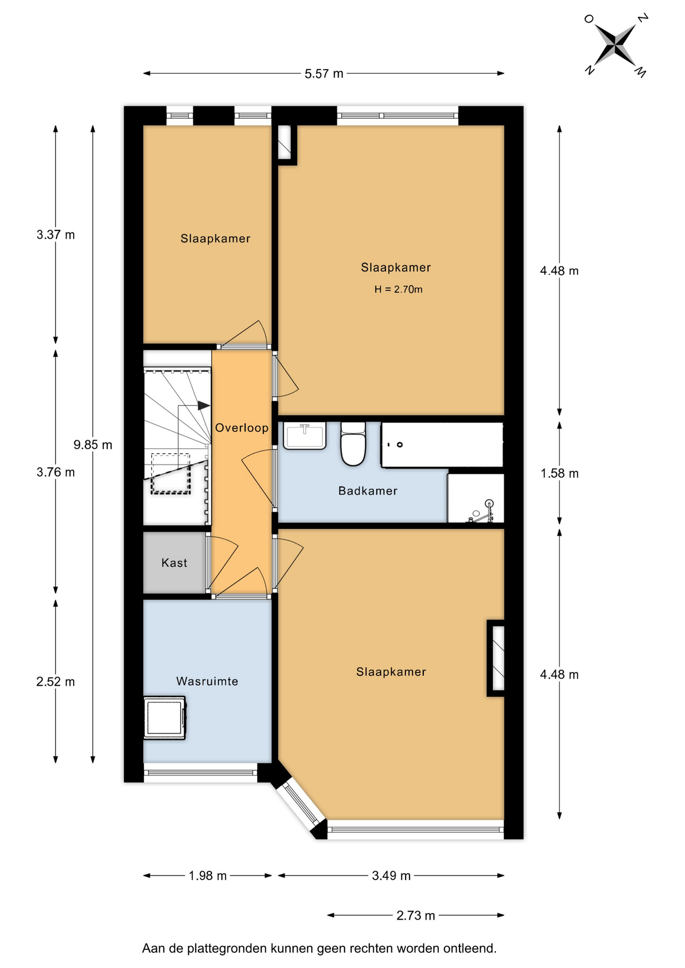
      1e etage:
      - Overloop met vaste kast met hierin de verdeler van de zonnepanelen.
      - Wasruimte met grote raampartij met shutters aan de voorzijde, voorzien van wasmachine- en drogeraansluiting.
      - Ruime slaapkamer aan de voorzijde met grote raampartij, voorzien van laminaatvloer en shutters.
      - Inpandige, volledig betegelde badkamer voorzien van spotjes, wastafel, toilet, bad, douchecabine en handdoekradiator.
      - Hoofslaapkamer gelegen aan de achterzijde met grote raampartij en laminaatvloer.
      - Slaap-/ werkkamer gelegen aan de achterzijde.

      Bijzonderheden:
      - Bouwjaar ca. 1935.
      - Energielabel C.
      - Woonoppervlakte ca. 124 m2.
      - De woning is voorzien van 8 zonnepanelen.
      - In ca. 2022 is de beglazing van een aantal ruiten vervangen.
      - De woning is gedeeltelijk voorzien van houten kozijnen met dubbel glas.
      - Schilderwerk is in 2023 en 2025 uitgevoerd.
      - Het schoorsteenkanaal is in 2025 geveegd.
      - Mogelijkheid om middels een dakopbouw extra kamers te creëren.

      Kortom, bent u op zoek naar uw nieuwe, sfeervolle thuis? Bel ons dan vooral voor een persoonlijke rondleiding!

      Interesse in dit huis? U kunt een eigen NVM-aankoopmakelaar inschakelen. Uw NVM-aankoopmakelaar komt op voor uw belang en kunt u tijd, geld en zorgen besparen. Adressen van collega NVM- aankoopmakelaars vindt u op Funda. Deze informatie is geheel vrijblijvend, uitsluitend voor geadresseerde bestemd en niet bedoeld als aanbod. Ten aanzien van de juistheid van de vermelde informatie kan door de verkopend makelaar en haar opdrachtgever geen aansprakelijkheid worden aanvaard, noch kan aan de vermelde informatie enig recht worden ontleend.

      Kenmerken

      Overdracht

      • Status Beschikbaar
      • Vraagprijs € 450.000,- k.k.
      • Aanvaarding In overleg

      Bouwvorm & Onderhoud

      • Soort woonhuis Tussenwoning
      • Soort bouw Bestaande bouw
      • Soort dak Plat dak
      • Onderhoud binnen Goed
      • Onderhoud buiten Goed

      Oppervlakten & inhoud

      • Gebruiksoppervlakte wonen ca. 124 m2
      • Overige inpandige ruimte ca. 17 m2
      • Inhoud ca. 548 m3
      • Perceeloppervlakte ca. 164 m2

      Indeling

      • Aantal slaapkamers 3
      • Aantal badkamers 1 badkamer
      • Badkamervoorzieningen Ligbad, toilet, douche, wastafel
      • Aantal woonlagen 2 woonlagen
      • Voorzieningen Mechanische ventilatie, alarminstallatie, rolluiken, tv kabel, buitenzonwering, glasvezel kabel, zonnepanelen

      Energie & Installatie

      • Energielabel C
      • Isolatie Muurisolatie, gedeeltelijk dubbel glas
      • Verwarming Cv ketel
      • Warm water Cv ketel
      • C.v.-ketel type Gas
      • C.v.-ketel bouwjaar 2016
      • Eigendom Eigendom

      Tuin & Buitenruimte

      • Ligging In centrum, in woonwijk
      • Hoofdtuin Achtertuin
      • Oppervlakte hoofdtuin ca. 15 m2
      • Ligging hoofdtuin Zuidwest
      • Achterom 1
      • Kwaliteit tuin Normaal

      Bergruimte

      • Schuur / berging Vrijstaand steen
      • Aantal schuren / bergingen 2
      • Voorzieningen Voorzien van verwarming, voorzien van elektra

      Parkeergelegenheid

      • Parkeerfaciliteiten Openbaar parkeren
      • Garage Geen garage

      In de buurt

          Ligging

          Bouwtypes