Omschrijving

In het "Hof van Wateringen " rustig gelegen een fraaie beknopte villa wijk in de stijl van de jaren ‘30. Een riante en goed onderhouden twee-onder-één-kap woning op een perceel van 240 m². Deze woning heeft een woonkamer/keuken van ca. 74 m2 . Een verzorgde achtertuin van 76 m² met de gehele dag zon tot in de avond en een vrij uitzicht.
In de directe omgeving vind je diverse winkels, scholen en goed openbaar vervoer tram/bus.

Lees meer

Kenmerken

  • Status Beschikbaar
  • Vraagprijs € 825.000,- kosten koper
  • Woonoppervlakte ca. 191 m2
  • Aantal slaapkamers 5
  • Bouwjaar 2001
Meer kenmerken

Documentatie per
e-mail

Laat je e-mailadres achter en ontvang de brochure direct in
je mailbox.

    Locatie

      Omschrijving

      In het "Hof van Wateringen " rustig gelegen een fraaie beknopte villa wijk in de stijl van de jaren ‘30. Een riante en goed onderhouden twee-onder-één-kap woning op een perceel van 240 m². Deze woning heeft een woonkamer/keuken van ca. 74 m2 . Een verzorgde achtertuin van 76 m² met de gehele dag zon tot in de avond en een vrij uitzicht.
      In de directe omgeving vind je diverse winkels, scholen en goed openbaar vervoer tram/bus.
      Daarnaast liggen het strand, het centrum van Den Haag en Delft op fietsafstand.

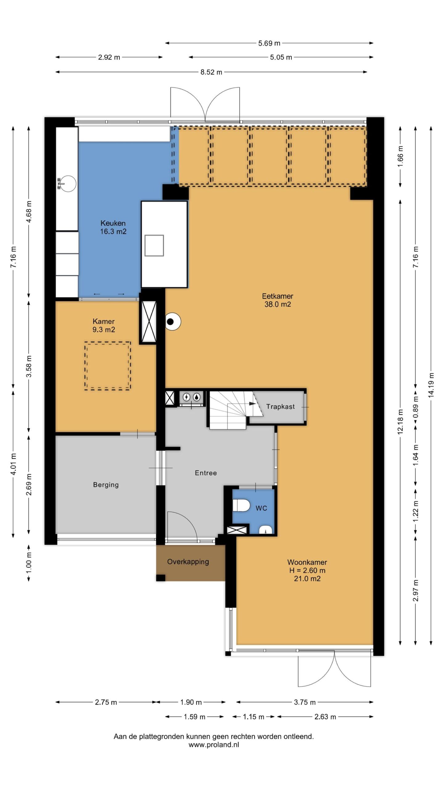
      Indeling begane grond:
      - Voortuin met terras en parkeren op eigen terrein voor twee auto's,
      - Entree woning, hal met meterkast, modern toilet met wandcloset en fontein, toegangsdeur naar de garage met elektrische garagedeur;
      - Woonkamer/keuken van ca. 74 m² aan de voor- en achterzijde dubbele openslaande deuren;
      - Aan de achterzijde een aanbouw met glazen dak waardoor er veel lichtinval is;
      - De woonkamer is voorzien van een moderne inbouw gashaard;
      - Moderne keuken met kookeiland met een Bora inductieplaat met geïntegreerd afzuigsysteem, koelkast, vriezer, quooker, stoomoven en combi-oven van het merk Bosch;
      - De praktijkruimte is bereikbaar door schuifdeuren met glas, met ventilerende lichtkoepel;
      - De begane grond is uitgevoerd met een laminaatvloer en vloerbedekking;
      - Heerlijke zonnige achtertuin van ca. 9 meter breed en ca 8,5 meter diep met daarin een mooie ruime veranda met aan beide zijde glazen schuifwanden. De vijver kan indien gewenst gedempt worden met tuinaarde.

      Eerste verdieping;
      - Overloop met wasruimte met opstelplaats wasmachine en droger;
      - Masterbedroom (ca 16 m²) met airco en tweede slaapkamer (ca. 12 m²) met kastenwand aan de achterzijde;
      - Derde kamer met kastenwand aan de voorzijde (ca. 5 m²) met toegangsdeur naar balkon;
      - Royale badkamer (ca. 12 m²) met groot hoekbad/whirlpool, ruime inloopdouche, wastafelmeubel en tweede toilet.

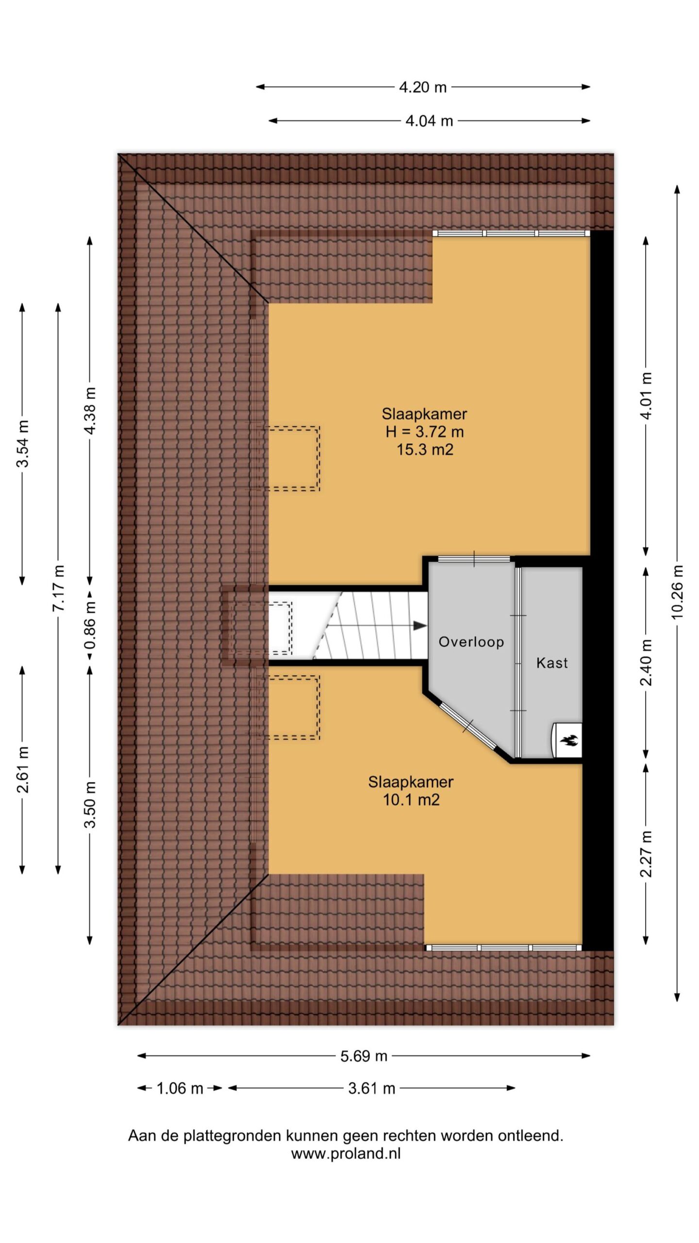
      Tweede verdieping:
      - Ruime overloop met kast met opstelplaats CV-ketel;
      - Derde slaapkamer (ca. 15 ²) met dakkapel aan de achterzijde;
      - Vierde slaapkamer (ca.10 m²) met dakkapel aan de voorzijde;
      - Beide kamers zijn voorzien van een velux-raam en knieschotten met veel bergruimte.

      Bijzonderheden.
      - Bouwjaar ca. 2001
      - Woonoppervlakte circa 191 m²
      - Perceeloppervlakte 240 m²
      - Parkeren op eigen terrein voor twee auto's
      - Erfpacht eeuwigdurend en canon eeuwigdurend afgekocht
      - Volledig geïsoleerd
      - Energielabel A
      - Zonnepanelen in 2023 geplaatst - 18 stuks
      - Verwarming middels HR-combiketel (Remeha Calenta ca. 2014)
      - Buitenschilderwerk in 2025 uitgevoerd

      Interesse in deze woning? U kunt een eigen NVM-aankoopmakelaar inschakelen. Uw NVM-aankoopmakelaar komt op voor uw belang en kan u tijd, geld en zorgen besparen. Adressen van collega NVM-aankoopmakelaars vindt u op Funda. 

      Deze informatie is geheel vrijblijvend, uitsluitend voor geadresseerde bestemd en niet bedoeld als aanbod. Ten aanzien van de juistheid van de vermelde informatie kan door de verkopend makelaar en haar opdrachtgever geen aansprakelijkheid worden aanvaard, noch kan aan de vermelde informatie enig recht worden ontleend.

      Kenmerken

      Overdracht

      • Status Beschikbaar
      • Vraagprijs € 825.000,- k.k.
      • Aanvaarding In overleg

      Bouwvorm & Onderhoud

      • Soort woonhuis Twee onder een kapwoning
      • Soort bouw Bestaande bouw
      • Bouwjaar 2001
      • Soort dak Samengesteld dak
      • Onderhoud binnen Goed
      • Onderhoud buiten Goed

      Oppervlakten & inhoud

      • Gebruiksoppervlakte wonen ca. 191 m2
      • Oppervlakte gebouwgebonden ca. 8 m2
      • Overige inpandige ruimte ca. 7 m2
      • Inhoud ca. 680 m3
      • Perceeloppervlakte ca. 240 m2

      Indeling

      • Aantal slaapkamers 5
      • Aantal badkamers 1 badkamer
      • Badkamervoorzieningen Toilet, wastafel, wastafelmeubel, inloopdouche, whirlpool
      • Aantal woonlagen 3 woonlagen
      • Voorzieningen Mechanische ventilatie, alarminstallatie, airconditioning, glasvezel kabel, zonnepanelen

      Energie & Installatie

      • Energielabel A
      • Isolatie Dakisolatie, muurisolatie, vloerisolatie, hr glas
      • Verwarming Cv ketel
      • Warm water Cv ketel
      • C.v.-ketel type Gas
      • C.v.-ketel bouwjaar 2014
      • Eigendom Eigendom

      Tuin & Buitenruimte

      • Ligging Aan rustige weg, in woonwijk
      • Hoofdtuin Achtertuin
      • Oppervlakte hoofdtuin ca. 79 m2
      • Ligging hoofdtuin Noordwest
      • Kwaliteit tuin Verzorgd

      Bergruimte

      • Schuur / berging Aangebouwd steen
      • Aantal schuren / bergingen 1
      • Voorzieningen Voorzien van verwarming, voorzien van elektra, voorzien van water

      Parkeergelegenheid

      • Parkeerfaciliteiten Openbaar parkeren, op eigen terrein
      • Garage Geen garage

      In de buurt

          Ligging

          Bouwtypes