Omschrijving

Deze rustig gelegen eindwoning is geheel naar eigen smaak te moderniseren en is in een kindvriendelijke buurt en op loopafstand van het Hofpark en het gezellige centrum van Wateringen.
In de directe omgeving bevinden zich diverse recreatie- en groenvoorzieningen, scholen, winkels en openbaar vervoer. In 20-30 minuten fietst u via de mooie natuurgebieden; De Uithof, Madestein en Ockenburgh naar het strand.
Ook fietst u in die…

Lees meer

Kenmerken

  • Status Beschikbaar
  • Vraagprijs € 375.000,- kosten koper
  • Woonoppervlakte ca. 70 m2
  • Aantal slaapkamers 2
  • Bouwjaar 1961
Meer kenmerken

Documentatie per
e-mail

Laat je e-mailadres achter en ontvang de brochure direct in
je mailbox.

    Locatie

      Omschrijving

      Deze rustig gelegen eindwoning is geheel naar eigen smaak te moderniseren en is in een kindvriendelijke buurt en op loopafstand van het Hofpark en het gezellige centrum van Wateringen.
      In de directe omgeving bevinden zich diverse recreatie- en groenvoorzieningen, scholen, winkels en openbaar vervoer. In 20-30 minuten fietst u via de mooie natuurgebieden; De Uithof, Madestein en Ockenburgh naar het strand.
      Ook fietst u in die tijd naar het centrum van Den Haag en het sfeervolle Delft

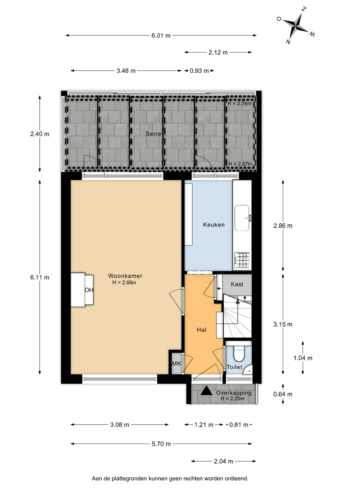
      Begane grond:
      - Entree, hal, toilet met fontein, trapkast;
      - Lichte doorzonwoonkamer met vrij uitzicht en voorzien van een plavuizenvloer (ca. 21 m²);
      - Dichte keuken met keukenblok in wandopstellng;
      - Ruime serre ca. 14 m² met opstelplaats CV-ketel;
      - Ca. 10 meter diepe achtertuin gelegen op het zuidoosten en achterin de tuin een stenen berging over de hele breedte.

      Eerste etage:
      - Ruime hoofdslaapkamer (ca. 20 m²) met vaste kasten;
      - Tweede slaapkamer (ca. 6 m²);
      - Lichte betegelde badkamer met douche, toilet en wastafel.

      Vliering:
      - Vlizotrap naar de vliering met bergruimte.

      Bijzonderheden:
      - Bouwjaar ca. 1961
      - Gebruiksoppervlakte wonen ca. 70 m²
      - Perceeloppervlakte 174 m²
      - Eigen grond
      - De woning beschikt over energielabel D
      - CV-ketel (ca. 2020)
      - Voor de clausules verwijzen wij naar de verkoopbrochure
      - Oplevering in overleg, op korte termijn mogelijk

      Interesse in dit huis? U kunt een eigen NVM-aankoopmakelaar inschakelen. Uw NVM-aankoopmakelaar komt op voor uw belang en kan u tijd, geld en zorgen besparen. Adressen van collega NVM-aankoopmakelaars vindt u op Funda.

      Deze informatie is geheel vrijblijvend, uitsluitend voor geadresseerde bestemd en niet bedoeld als aanbod. Ten aanzien van de juistheid van de vermelde informatie kan door de verkopend makelaar en haar opdrachtgever geen aansprakelijkheid worden aanvaard, noch kan aan de vermelde informatie enig recht worden ontleend.

      Kenmerken

      Overdracht

      • Status Beschikbaar
      • Vraagprijs € 375.000,- k.k.
      • Aanvaarding In overleg

      Bouwvorm & Onderhoud

      • Soort woonhuis Eindwoning
      • Soort bouw Bestaande bouw
      • Bouwjaar 1961
      • Soort dak Zadeldak
      • Onderhoud binnen Redelijk
      • Onderhoud buiten Redelijk

      Oppervlakten & inhoud

      • Gebruiksoppervlakte wonen ca. 70 m2
      • Oppervlakte gebouwgebonden ca. 16 m2
      • Externe bergruimte ca. 21 m2
      • Inhoud ca. 278 m3
      • Perceeloppervlakte ca. 174 m2

      Indeling

      • Aantal slaapkamers 2
      • Aantal badkamers 1 badkamer
      • Badkamervoorzieningen Toilet, douche, wastafel
      • Aantal woonlagen 2 woonlagen
      • Voorzieningen Tv kabel, natuurlijke ventilatie

      Energie & Installatie

      • Energielabel D
      • Isolatie Dubbel glas
      • Verwarming Cv ketel
      • Warm water Cv ketel
      • C.v.-ketel type Gas
      • C.v.-ketel bouwjaar 2020
      • Eigendom Eigendom

      Tuin & Buitenruimte

      • Ligging Aan rustige weg, in woonwijk, vrij uitzicht
      • Hoofdtuin Achtertuin
      • Oppervlakte hoofdtuin ca. 60 m2
      • Ligging hoofdtuin Zuidoost
      • Achterom 1
      • Kwaliteit tuin Normaal

      Bergruimte

      • Schuur / berging Vrijstaand steen
      • Aantal schuren / bergingen 1
      • Voorzieningen Voorzien van elektra

      Parkeergelegenheid

      • Parkeerfaciliteiten Openbaar parkeren
      • Garage Geen garage

      In de buurt

          Ligging

          Bouwtypes