Omschrijving

Ben je op zoek naar een woning met verrassend veel ruimte én een fijne ligging in een gezellige dorpskern? Dan is deze hoekwoning (ca. 101 m²) aan een autoluwe straat in De Lier echt iets voor jou. Met een ruime woonkamer, drie slaapkamers, een zonnige voortuin op het zuidwesten én alle dagelijkse voorzieningen op loopafstand, is dit een ideale plek voor starters, kleine gezinnen of doorstromers die sfeervol willen wonen met alles binnen…

Lees meer

Kenmerken

  • Status Beschikbaar
  • Vraagprijs € 369.000,- kosten koper
  • Woonoppervlakte ca. 101 m2
  • Aantal slaapkamers 4
  • Bouwjaar 1923
Meer kenmerken

Documentatie per
e-mail

Laat je e-mailadres achter en ontvang de brochure direct in
je mailbox.

    Locatie

      Omschrijving

      Ben je op zoek naar een woning met verrassend veel ruimte én een fijne ligging in een gezellige dorpskern? Dan is deze hoekwoning (ca. 101 m²) aan een autoluwe straat in De Lier echt iets voor jou. Met een ruime woonkamer, drie slaapkamers, een zonnige voortuin op het zuidwesten én alle dagelijkse voorzieningen op loopafstand, is dit een ideale plek voor starters, kleine gezinnen of doorstromers die sfeervol willen wonen met alles binnen handbereik.

      Deze woning is gelegen op eigen grond, volledig voorzien van dubbel glas en heeft een energielabel D. Binnen tref je een zeer ruime en lichte woonkamer met open keuken, drie slaapkamers op de 1e en 2e verdieping en veel opbergruimte.

      Met slechts 3 minuten lopen sta je al in de gezellige Hoofdstraat met winkels, supermarkten, horeca en ambachtelijke bakkers. Ook scholen, sportverenigingen en uitvalswegen richting onder andere Delft en Rotterdam zijn snel bereikbaar.

      Kortom: een woning met volop mogelijkheden op een toplocatie in De Lier!

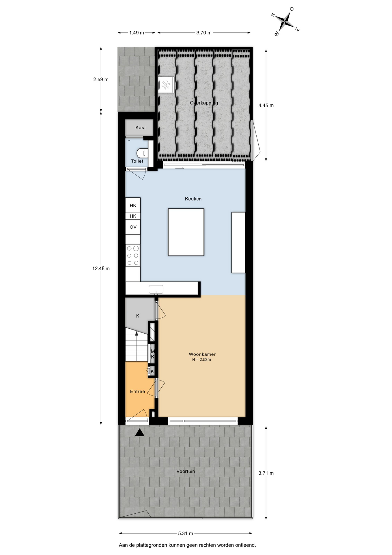
      Indeling:
      - Middels de gezellige, ruime voortuin bereik je de entree van de woning. De voortuin is gelegen op het zuidwesten: hier geniet je bijna de gehele dag van de zon;
      - Entree via de voortuin naar de hal met meterkast en trapopgang naar de 1e verdieping;
      - Lichte woonkamer voorzien van een grindvloer met vloer- en wandverwarming met open keuken en trapkast (totaal ca. 42 m²);
      - De open keuken in hoekopstelling is voorzien van diverse inbouwapparatuur te weten: 5-pits gaskookplaat, afzuigkap, koelkast, vriezer, oven, combi-magnetron en vaatwasser;
      - Volledig betegeld toilet met bergruimte waar de cv-ketel zich bevindt;
      - Middels de schuifpui bereikt u de achtertuin, welke momenteel volledig overkapt is. Vanuit de overkapping is de berging bereikbaar.

      1e verdieping:
      - Overloop met vaste trap naar de 2e verdieping;
      - Ruime slaapkamer (ca. 3,94/2,44 x 4,76 m) met schuifpui, gelegen aan de achterzijde van de woning;
      - De 2e slaapkamer (ca. 3,37 x 2,72 m) is gelegen aan de voorzijde van de woning;
      - De badkamer (ca. 2,48/2,12 x 1,91 m) is voorzien van een inloopdouche, wastafel en vloerverwarming.

      2e verdieping:
      - Overloop;
      - 3e slaapkamer (ca. 3,24 x 2,89/3,21 m) met veel opbergruimte;
      - Middels deze slaapkamer heb je toegang tot de 4e kamer, deze kan gebruikt worden als kantoor, kleine slaapkamer of berging.

      Bijzonderheden:
      - Bouwjaar 1923;
      - Gebruiksoppervlakte wonen ca. 101 m²; inhoud 361 m³;
      - Perceeloppervlakte ca. 98 m²;
      - De gehele woning is voorzien van dubbel glas;
      - Warm water en verwarming middels cv-ketel, Remeha, bouwjaar 2018;
      - Vloer- en wandverwarming op de begane grond en gedeeltelijk in de grote slaapkamer;
      - Energielabel D;
      - Ondergrondse opslagtank (septictank) aanwezig in de voortuin, volgens de vorige eigenaar is deze niet meer in gebruik en volgens de daarvoor geldende wettelijke voorschriften onklaar gemaakt;
      - 8 zonnepanelen (huur € 44,- per maand);
      - Oplevering in overleg.

      Kenmerken

      Overdracht

      • Status Beschikbaar
      • Vraagprijs € 369.000,- k.k.
      • Aanvaarding In overleg

      Bouwvorm & Onderhoud

      • Soort woonhuis Eindwoning
      • Soort bouw Bestaande bouw
      • Bouwjaar 1923
      • Soort dak Zadeldak
      • Onderhoud binnen Matig tot redelijk
      • Onderhoud buiten Redelijk tot goed

      Oppervlakten & inhoud

      • Gebruiksoppervlakte wonen ca. 101 m2
      • Oppervlakte gebouwgebonden ca. 17 m2
      • Inhoud ca. 361 m3
      • Perceeloppervlakte ca. 98 m2

      Indeling

      • Aantal slaapkamers 4
      • Aantal badkamers 1 badkamer
      • Badkamervoorzieningen Douche, wastafel
      • Aantal woonlagen 3 woonlagen
      • Voorzieningen Tv kabel, schuifpui, glasvezel kabel, natuurlijke ventilatie

      Energie & Installatie

      • Energielabel D
      • Isolatie Dubbel glas
      • Verwarming Cv ketel
      • Warm water Cv ketel
      • C.v.-ketel type Gas
      • C.v.-ketel bouwjaar 2018
      • Eigendom Eigendom

      Tuin & Buitenruimte

      • Ligging Aan rustige weg, in woonwijk
      • Hoofdtuin Voortuin
      • Oppervlakte hoofdtuin ca. 20 m2
      • Ligging hoofdtuin Zuidwest
      • Kwaliteit tuin Normaal

      Bergruimte

      • Schuur / berging Aangebouwd steen
      • Aantal schuren / bergingen 1

      Parkeergelegenheid

      • Parkeerfaciliteiten Openbaar parkeren
      • Garage Geen garage

      In de buurt

          Ligging

          Bouwtypes