Omschrijving

Ruime en goed onderhouden eengezinswoning met nokverhoging en zonnige achtertuin. De woning ligt op steenworp afstand van het strand en duinen!

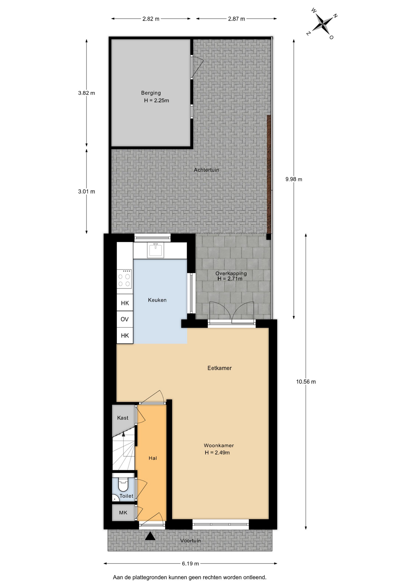
Begane grond:
- Entree, hal met trapopgang naar de eerste etage, meterkast, trapkast en moderne toiletruimte met fonteintje.
- Ruime en lichte woonkamer voorzien van mooie houtlook tegelvloer met vloerverwarming, gestuukt plafond met spotjes en openslaande deuren naar de…

Lees meer

Kenmerken

  • Status Onder bod
  • Vraagprijs € 479.000,- kosten koper
  • Woonoppervlakte ca. 99 m2
  • Aantal slaapkamers 4
  • Bouwjaar 1954
Meer kenmerken

Documentatie per
e-mail

Laat je e-mailadres achter en ontvang de brochure direct in
je mailbox.

    Locatie

      Omschrijving

      Ruime en goed onderhouden eengezinswoning met nokverhoging en zonnige achtertuin. De woning ligt op steenworp afstand van het strand en duinen!

      Begane grond:
      - Entree, hal met trapopgang naar de eerste etage, meterkast, trapkast en moderne toiletruimte met fonteintje.
      - Ruime en lichte woonkamer voorzien van mooie houtlook tegelvloer met vloerverwarming, gestuukt plafond met spotjes en openslaande deuren naar de zonnige achtertuin.
      - Moderne aangebouwde open keuken ( matzwart, circa 2020) composiet blad en voorzien van diverse inbouwapparatuur en grote raampartijen met zicht op de achtertuin.
      - Verzorgde en zonnige achtertuin (2024/2025) waar je de gehele dag heerlijk kunt genieten van de zon. De tuin is voorzien van een gezellige overkapping met elektra, fraaie tegels, buitenkraan, ruime stenen berging en achterom.

      Eerste etage:
      - Overloop met trapopgang naar de tweede etage.
      - Ruime ouderslaapkamer aan de voorzijde van de woning.
      - Goede slaapkamer gelegen aan de achterzijde, voorzien van een laminaat vloer en een ruime vaste kast.
      - Slaapkamer aan de achterzijde van de woning tevens voorzien van laminaat vloer en wasmachine-aansluiting.
      - Moderne geheel betegelde badkamer (circa 2020) met inloopdouche, wastafelmeubel, vloerverwarming, raam en gestuukt plafond met spotjes.

      Tweede etage:
      - Overloop met bergruimte.
      - Ruime slaapkamer met laminaat vloer, grote ramen en opstelplaats van de c.v.-ketel (Remeha Avanta, circa 2020)

      Bijzonderheden:
      - Bouwjaar circa 1954.
      - Perceel 105 m² eigen grond.
      - Woonoppervlakte circa 99 m².
      - Begane grond vloer en het dak zijn geïsoleerd.
      - In circa 2020 is de meterkast vervangen.
      - In circa 2023 zijn er 10 zonnepanelen (huur) geplaats.
      - In circa 2024 is de dakbedekking van de aanbouw vervangen.
      - De woning ligt nabij het centrum van Monster, het openbaar vervoer en op steenworp afstand van het strand.
      - Uitvalswegen liggen op korte afstand.

      Kortom, bent u op zoek naar een ruime en goed onderhouden eengezinswoning met zonnige tuin op steenworp afstand gelegen van het strand? Dan is deze woning zeker uw bezichtiging waard!

      Interesse in dit huis? Schakel direct uw eigen NVM-aankoopmakelaar in. Uw NVM-aankoopmakelaar komt op voor uw belang en bespaart u tijd, geld en zorgen.

      Adressen van collega NVM- aankoopmakelaars in Haaglanden vindt u op Funda.

      Deze informatie is geheel vrijblijvend, uitsluitend bestemd voor geadresseerde en niet bedoeld als aanbod. Ten aanzien van de juistheid van de vermelde informatie kan door verkopend makelaar geen aansprakelijkheid worden aanvaard, noch kan aan de vermelde informatie enig recht worden ontleend.

      Kenmerken

      Overdracht

      • Status Onder bod
      • Vraagprijs € 479.000,- k.k.
      • Aanvaarding In overleg

      Bouwvorm & Onderhoud

      • Soort woonhuis Tussenwoning
      • Soort bouw Bestaande bouw
      • Bouwjaar 1954
      • Soort dak Zadeldak
      • Onderhoud binnen Goed
      • Onderhoud buiten Goed

      Oppervlakten & inhoud

      • Gebruiksoppervlakte wonen ca. 99 m2
      • Oppervlakte gebouwgebonden ca. 8 m2
      • Externe bergruimte ca. 11 m2
      • Inhoud ca. 346 m3
      • Perceeloppervlakte ca. 105 m2

      Indeling

      • Aantal slaapkamers 4
      • Aantal badkamers 1 badkamer
      • Badkamervoorzieningen Toilet, dubbele wastafel, inloopdouche, vloerverwarming
      • Aantal woonlagen 3 woonlagen
      • Voorzieningen Glasvezel kabel, zonnepanelen

      Energie & Installatie

      • Energielabel C
      • Isolatie Dakisolatie, vloerisolatie, dubbel glas
      • Verwarming Cv ketel
      • Warm water Cv ketel
      • C.v.-ketel type Gas
      • C.v.-ketel bouwjaar 2020

      Tuin & Buitenruimte

      • Ligging Aan rustige weg, in woonwijk
      • Hoofdtuin Achtertuin
      • Oppervlakte hoofdtuin ca. 62 m2
      • Achterom 1
      • Kwaliteit tuin Verzorgd

      Bergruimte

      • Schuur / berging Vrijstaand steen
      • Aantal schuren / bergingen 1

      Parkeergelegenheid

      • Parkeerfaciliteiten Openbaar parkeren
      • Garage Geen garage

      In de buurt

          Ligging

          Bouwtypes