Omschrijving

Langs de Brasserskade staat deze stijlvolle vrijstaande villa. De woning is gelegen in de kindvriendelijke wijk “Brasacker”. Het erf is toegankelijk via de Engelwortel. De woning kenmerkt zich door het gebruik van exclusieve en hoogwaardige materialen. Het historische centrum van Delft, het moderne winkelcentrum “De Parade” in Nootdorp, openbaar vervoer, uitvalswegen en de recreatiegebieden “Dobbeplas” en “Delftse Hout” vindt u in de…

Lees meer

Kenmerken

  • Status Verkocht onder voorbehoud
  • Vraagprijs € 1.099.000,- kosten koper
  • Woonoppervlakte ca. 237 m2
  • Aantal slaapkamers 5
  • Bouwjaar 2006
Meer kenmerken

Documentatie per
e-mail

Laat je e-mailadres achter en ontvang de brochure direct in
je mailbox.

    Locatie

      Omschrijving

      Langs de Brasserskade staat deze stijlvolle vrijstaande villa. De woning is gelegen in de kindvriendelijke wijk “Brasacker”. Het erf is toegankelijk via de Engelwortel. De woning kenmerkt zich door het gebruik van exclusieve en hoogwaardige materialen. Het historische centrum van Delft, het moderne winkelcentrum “De Parade” in Nootdorp, openbaar vervoer, uitvalswegen en de recreatiegebieden “Dobbeplas” en “Delftse Hout” vindt u in de buurt.

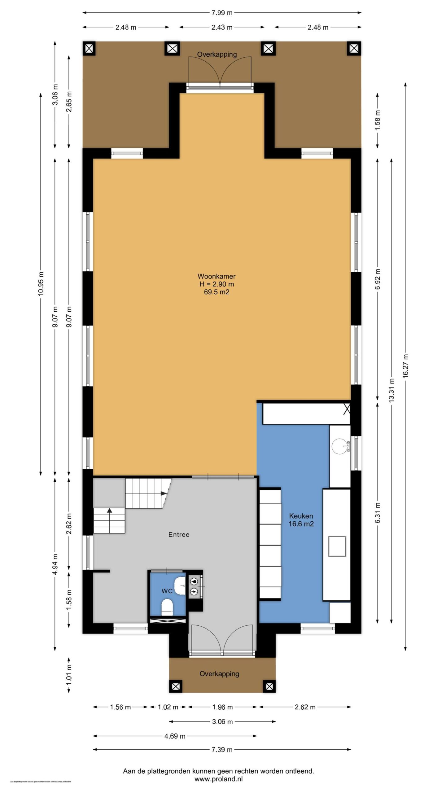
      Indeling
      Begane grond:
      - Via de voortuin en het privéparkeerterrein bereikt u de entree van de woning;
      - Entree van de woning met meterkast, garderobe, toiletruimte, trapopgang en dubbele openslaande deuren richting de woonkamer;
      - De fraaie en ruime woonkamer is voorzien van een gelhaard en geeft toegang tot de keuken en de achtertuin;
      - De schouw is vervaardigd uit Italiaans marmer en afgewerkt met exclusief Emperador marmer;
      - De luxe keuken is voorzien van een werkblad dat op ambachtelijke wijze is uitgevoerd met grote platen Indiaas Juparana graniet. Het graniet kenmerkt zich door zijn unieke structuur met vegen en golven in zwarte en rode kleuren. De keuken bevat diverse inbouwapparatuur, waaronder een inductiekookplaat met gril en frituur, 2 combiovens, een stoomoven, een koffieapparaat, een warmhoudlade, een vaatwasser en een Quooker;
      - De achtertuin ligt op het zuidwesten. Deze beschikt over diverse leuke zithoekjes en overkappingen met verlichting, waaronder een fraaie veranda.

      Eerste etage:
      - Via de stijlvolle hal en trappenhuis op de begane grond bereikt u de eerste etage;
      - De overloop geeft toegang tot de vier slaapkamers;
      - Aan de voorzijde is de hoofdslaapkamer gesitueerd. Deze beschikt over een balkon, inloop-kleedruimte en een eigen badkamer met ligbad, inloopdouche, wandcloset en wastafel. De badkamer is voorzien van exclusief Emperador marmer;
      - De overige drie slaapkamers zijn erg ruim. Twee van deze slaapkamers bieden toegang tot een terras aan de achterzijde;
      - Via de overloop is de hoofdbadkamer bereikbaar. Deze is voorzien van een bubbelbad, dubbele wastafel, inloopdouche en wandcloset.

      Tweede etage:
      - Op de tweede etage bevindt zich een ruime kamer met een dakkapel. De ruimte is zeer geschikt als thuiswerkplek en/of als ideale speelplek voor kinderen.

      Bijzonderheden:
      - De woning is volledig gasloos en is aangesloten op stadsverwarming;
      - Eigen parkeergelegenheid bij de woning met ruimte voor 4 tot 5 auto’s;
      - De gehele woning wordt verwarmd door middel van vloerverwarming . In de kamers is een zoneregeling aanwezig, zodat u de temperatuur in de verschillende vertrekken eenvoudig kunt regelen;
      - Gelegen op eigen grond;
      - Energielabel A;
      - De meeste vloeren op de begane grond en de eerste etage zijn uitgevoerd in luxe wit en bruin “Crèma Marvil” marmer van 2,5 cm dik;
      - Bouwjaar 2006.

      Deze informatie is geheel vrijblijvend, uitsluitend voor geadresseerde bestemd en niet bedoeld als aanbod. Ten aanzien van de juistheid van de vermelde informatie kan door de verkopend makelaar en haar opdrachtgever geen aansprakelijkheid worden aanvaard, noch kan aan de vermelde informatie enig recht worden ontleend.

      Kenmerken

      Overdracht

      • Status Verkocht onder voorbehoud
      • Vraagprijs € 1.099.000,- k.k.
      • Aanvaarding In overleg

      Bouwvorm & Onderhoud

      • Soort woonhuis Vrijstaande woning
      • Soort bouw Bestaande bouw
      • Bouwjaar 2006
      • Soort dak Schilddak
      • Onderhoud binnen Goed
      • Onderhoud buiten Goed

      Oppervlakten & inhoud

      • Gebruiksoppervlakte wonen ca. 237 m2
      • Oppervlakte gebouwgebonden ca. 21 m2
      • Externe bergruimte ca. 7 m2
      • Inhoud ca. 904 m3
      • Perceeloppervlakte ca. 456 m2

      Indeling

      • Aantal slaapkamers 5
      • Aantal badkamers 2 badkamers
      • Badkamervoorzieningen Toilet, jacuzzi, dubbele wastafel, wastafelmeubel, inloopdouche, vloerverwarming, ligbad, toilet, wastafel, wastafelmeubel, inloopdouche, vloerverwarming
      • Aantal woonlagen 3 woonlagen
      • Voorzieningen Alarminstallatie, tv kabel, dakraam

      Energie & Installatie

      • Energielabel A
      • Isolatie Dubbel glas, volledig geisoleerd
      • Verwarming Stadsverwarming
      • Warm water Stadsverwarming

      Tuin & Buitenruimte

      • Ligging Aan water, aan rustige weg, in woonwijk, vrij uitzicht
      • Hoofdtuin Achtertuin
      • Ligging hoofdtuin Zuidwest
      • Achterom 1
      • Kwaliteit tuin Normaal

      Bergruimte

      • Schuur / berging Vrijstaand hout
      • Aantal schuren / bergingen 1
      • Voorzieningen Voorzien van elektra

      Parkeergelegenheid

      • Parkeerfaciliteiten Openbaar parkeren, op eigen terrein
      • Garage Geen garage

      In de buurt

          Ligging

          Bouwtypes