Omschrijving

Nabij het gezellige centrum van Monster gelegen karakteristieke vrijstaande woning op een ruim en zonnig perceel van 244 m² eigen grond en royale stenen berging.
Heb jij zin om je handen uit de mouwen te steken om van deze woning jouw droomwoning te maken? Maak dan vooral een afspraak om te komen kijken!

Begane grond:
- Entree, hal met garderobe ruimte en toegangsdeur tot de achtertuin.
- Royale woonkamer…

Lees meer

Kenmerken

  • Status Beschikbaar
  • Vraagprijs € 525.000,- kosten koper
  • Woonoppervlakte ca. 136 m2
  • Aantal slaapkamers 1
  • Bouwjaar 1938
Meer kenmerken

Documentatie per
e-mail

Laat je e-mailadres achter en ontvang de brochure direct in
je mailbox.

    Locatie

      Omschrijving

      Nabij het gezellige centrum van Monster gelegen karakteristieke vrijstaande woning op een ruim en zonnig perceel van 244 m² eigen grond en royale stenen berging.
      Heb jij zin om je handen uit de mouwen te steken om van deze woning jouw droomwoning te maken? Maak dan vooral een afspraak om te komen kijken!

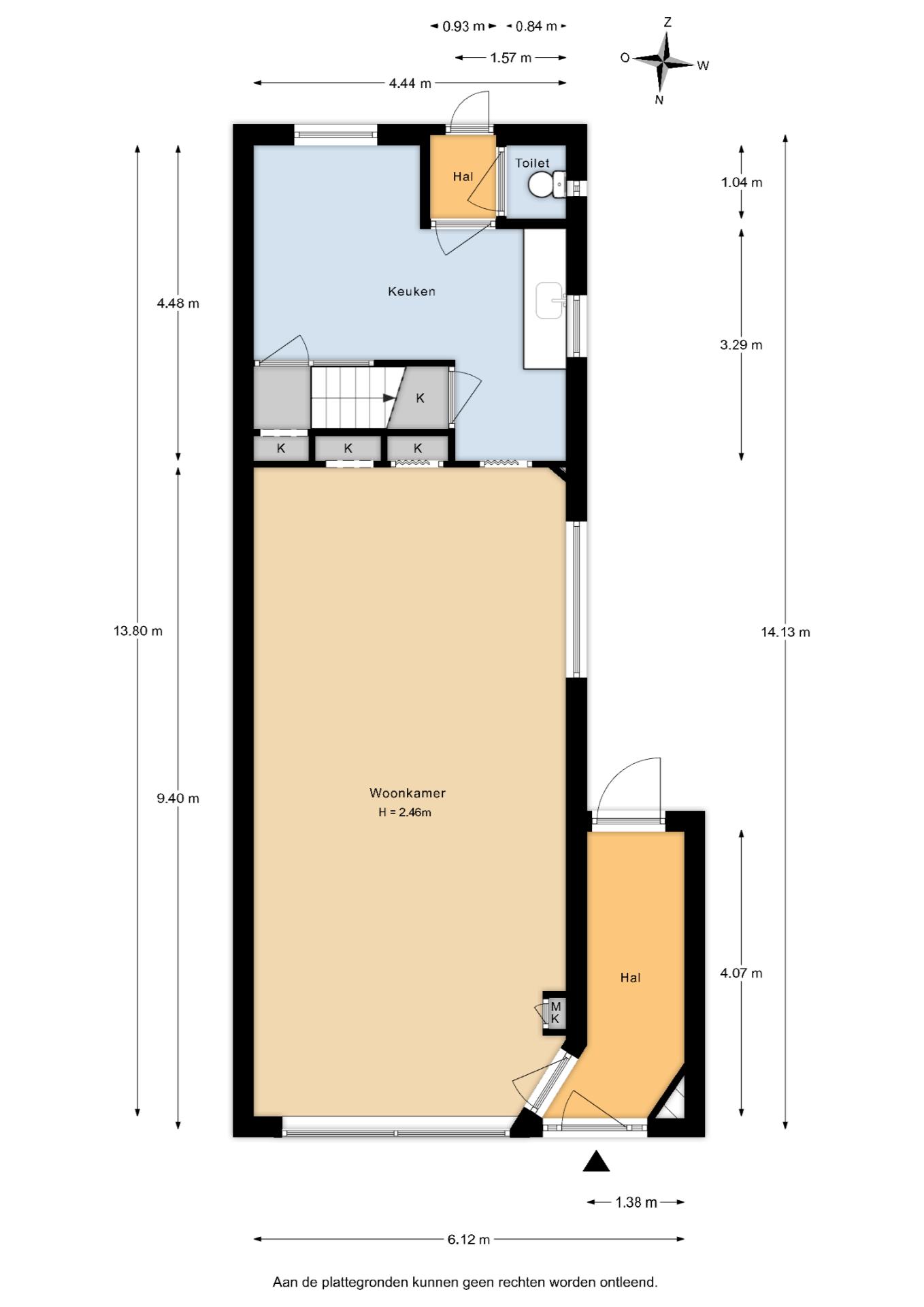
      Begane grond:
      - Entree, hal met garderobe ruimte en toegangsdeur tot de achtertuin.
      - Royale woonkamer voorzien van grote raampartijen, plavuizen vloer en meterkast.
      - Ruime keuken met eenvoudige opstelling, grote raampartijen, vaste kast en trapopgang naar de 1e etage.
      - Hal met toiletruimte en deur naar de achtertuin.
      - Royale en zonnige achtertuin gelegen op het zuiden, waar je de gehele dag heerlijk kunt genieten van de zon. De tuin is voorzien van een grote stenen berging (30 m²) met
      elektra en ramen.

      1e etage:
      - Grote vrij indeelbare open ruimte met vaste schuifkast, raampartij en toegang tot de badkamer.
      - Ruime badkamer gelegen aan de achterzijde, voorzien van ligbad, toilet, wastafel, grote raampartij en opstelplaats van de c.v.-ketel (Atag, circa 2019).
      - Ruime slaapkamer over de gehele breedte van de woning gelegen aan de voorzijde tevens voorzien van een vaste schuifkast en grote raampartij.

      Bijzonderheden:
      - Bouwjaar circa 1938.
      - Royaal perceel 244 m² eigen grond.
      - De woning is op loopafstand gelegen van het gezellige centrum met alle voorzieningen en het openbaar vervoer
      - Alle voorzieningen en het strand, zee en de duinen zijn op fietsafstand bereikbaar.
      - Uitvalswegen zijn tevens op korte afstand nabij.
      - Energielabel F.

      Interesse in dit huis? Schakel direct uw eigen NVM-aankoopmakelaar in. Uw NVM-aankoopmakelaar komt op voor uw belang en bespaart u tijd, geld en zorgen.

      Adressen van collega NVM- aankoopmakelaars in Haaglanden vindt u op Funda.

      Deze informatie is geheel vrijblijvend, uitsluitend voor geadresseerde bestemd en niet bedoeld als aanbod. Ten aanzien van de juistheid van de vermelde informatie kan door verkopend makelaar en opdrachtgever geen aansprakelijkheid worden aanvaard, noch kan aan de vermelde informatie enig recht worden ontleend.

      Kenmerken

      Overdracht

      • Status Beschikbaar
      • Vraagprijs € 525.000,- k.k.
      • Aanvaarding In overleg

      Bouwvorm & Onderhoud

      • Soort woonhuis Vrijstaande woning
      • Soort bouw Bestaande bouw
      • Bouwjaar 1938
      • Soort dak Plat dak
      • Onderhoud binnen Redelijk
      • Onderhoud buiten Redelijk

      Oppervlakten & inhoud

      • Gebruiksoppervlakte wonen ca. 136 m2
      • Externe bergruimte ca. 30 m2
      • Inhoud ca. 480 m3
      • Perceeloppervlakte ca. 244 m2

      Indeling

      • Aantal slaapkamers 1
      • Aantal badkamers 1 badkamer
      • Badkamervoorzieningen Ligbad, toilet, wastafel
      • Aantal woonlagen 2 woonlagen

      Energie & Installatie

      • Energielabel F
      • Isolatie Gedeeltelijk dubbel glas
      • Verwarming Cv ketel
      • Warm water Cv ketel
      • C.v.-ketel type Gas
      • C.v.-ketel bouwjaar 2019

      Tuin & Buitenruimte

      • Ligging In centrum
      • Hoofdtuin Achtertuin
      • Oppervlakte hoofdtuin ca. 115 m2
      • Ligging hoofdtuin Zuid

      Bergruimte

      • Schuur / berging Vrijstaand steen
      • Aantal schuren / bergingen 1
      • Voorzieningen Voorzien van elektra

      Parkeergelegenheid

      • Parkeerfaciliteiten Openbaar parkeren
      • Garage Geen garage

      In de buurt

          Ligging

          Bouwtypes