Omschrijving

Royale en tot in de puntjes verzorgde eindwoning met zonnige voor- en achtertuin gelegen aan een woonerf in een populaire, groene, kindvriendelijke en rustige woonomgeving gelegen tegenover een grote speeltuin.

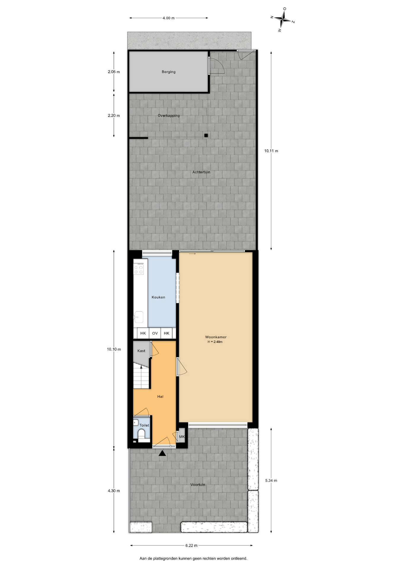
Begane grond:
- De verzorgde en zonnige voortuin geeft je toegang tot de woning.
- Entree, hal met meterkast, moderne toiletruimte met fonteintje, trapkast en trapopgang naar de 1e etage.
- Royale en…

Lees meer

Kenmerken

  • Status Verkocht onder voorbehoud
  • Vraagprijs € 569.000,- kosten koper
  • Woonoppervlakte ca. 137 m2
  • Aantal slaapkamers 4
  • Bouwjaar 1972
Meer kenmerken

Documentatie per
e-mail

Laat je e-mailadres achter en ontvang de brochure direct in
je mailbox.

    Locatie

      Omschrijving

      Royale en tot in de puntjes verzorgde eindwoning met zonnige voor- en achtertuin gelegen aan een woonerf in een populaire, groene, kindvriendelijke en rustige woonomgeving gelegen tegenover een grote speeltuin.

      Begane grond:
      - De verzorgde en zonnige voortuin geeft je toegang tot de woning.
      - Entree, hal met meterkast, moderne toiletruimte met fonteintje, trapkast en trapopgang naar de 1e etage.
      - Royale en lichte woonkamer voorzien van mooie massief eiken houten vloer, spachtelputz wandafwerking. Dankzij de grote raampartijen komt er veel daglicht binnen, wat zorgt voor een aangename sfeer. De fraaie schuifpui creëert een vloeiende verbinding met de zonnige achtertuin, waardoor binnen en buiten op harmonieuze wijze in elkaar overlopen.
      - Moderne en ruime open keuken (circa 2019) voorzien van diverse inbouwapparatuur en gestuukt plafond met spotjes. Dankzij de grote raampartij geniet je hier van een prettige lichtinval en een fraai zicht op de achtertuin.
      - Royale, zonnige en sfeervolle achtertuin waar je de hele dag heerlijk kunt genieten van de zon. De tuin is voorzien van grote siertegels, elektrisch bedienbaar zonnescherm, gezellige overkapping en ruime stenen berging met elektra en een praktische achterom.

      1e etage:
      - Overloop met trapopgang naar de 2e etage.
      - Royale ouderslaapkamer gelegen aan de achterzijde van de woning, voorzien van laminaat vloer, schuifkast en grote raampartij met elektrisch bedienbaar rolluik.
      - Ruime slaapkamer gelegen aan de voorzijde tevens voorzien van laminaat vloer en grote raampartij met elektrisch bedienbaar rolluik.
      - Goede derde slaapkamer aan de achterzijde van de woning voorzien van een laminaat vloer en raampartij met elektrisch bedienbaar rolluik.
      - Moderne badkamer (circa 2018) met inloopdouche, dubbel wastafelmeubel, 2e toilet, design radiator en raampartij met elektrisch bedienbaar rolluik.

      2e etage:
      - Voorzolder voorzien van vaste schuifkast met opstelplaats van de cv-ketel (Remeha, circa 2024), wasmachine-aansluiting, mechanische ventilatie en bergruimte tevens keurig weggewerkt achter mooie schuifdeuren.
      - Royale slaapkamer met groot dakraam, laminaat vloer en bergruimte.

      Bijzonderheden:
      - Bouwjaar circa 1972.
      - Woonoppervlakte circa 137 m².
      - Perceel 162 m² eigen grond.
      - In circa 2022 is de woning voorzien van kunststof kozijnen met dubbel glas. Tevens zijn toen alle ramen en deuren voorzien van een elektrisch bedienbaar rolluik.
      - In circa 2020 zijn er 14 zonnepanelen geplaatst.
      - De gevels zijn gereinigd, opnieuw gevoegd, geïmpregneerd en geïsoleerd.
      - De boeidelen zijn vervangen voor trespa.
      - Gelegen in populaire en kindvriendelijke woonomgeving, met aan de voorzijde een grote speeltuin en op loopafstand van de woning bevinden zich drie basisscholen.
      - De woning ligt op korte afstand van het gezellige centrum van ’s-Gravenzande, het openbaar vervoer en op fietsafstand van het strand. Uitvalswegen liggen op korte afstand.
      - Voldoende parkeergelegenheid nabij de woning.
      - Mogelijkheid tot aankoop van de separate garage, vraagprijs € 45.000,- k.k.

      Kortom, bent u op zoek naar een royale en tot in de puntjes verzorgde eindwoning met zonnige voor- en achtertuin, dan is deze woning zeker een bezichtiging waard!

      Interesse in dit huis? Schakel direct uw eigen NVM-aankoopmakelaar in. Uw NVM-aankoopmakelaar komt op voor uw belang en bespaart u tijd, geld en zorgen.
      Adressen van collega NVM-aankoopmakelaars in Haaglanden vindt u op Funda.

      Deze informatie is geheel vrijblijvend, uitsluitend bestemd voor geadresseerde en niet bedoeld als aanbod. Ten aanzien van de juistheid van de vermelde informatie kan door verkopend makelaar geen aansprakelijkheid worden aanvaard, noch kan aan de vermelde informatie enig recht worden ontleend.

      Kenmerken

      Overdracht

      • Status Verkocht onder voorbehoud
      • Vraagprijs € 569.000,- k.k.
      • Aanvaarding In overleg

      Bouwvorm & Onderhoud

      • Soort woonhuis Eindwoning
      • Soort bouw Bestaande bouw
      • Bouwjaar 1972
      • Soort dak Zadeldak
      • Onderhoud binnen Goed
      • Onderhoud buiten Goed

      Oppervlakten & inhoud

      • Gebruiksoppervlakte wonen ca. 137 m2
      • Externe bergruimte ca. 26 m2
      • Inhoud ca. 460 m3
      • Perceeloppervlakte ca. 182 m2

      Indeling

      • Aantal slaapkamers 4
      • Aantal badkamers 1 badkamer
      • Badkamervoorzieningen Toilet, wastafelmeubel, inloopdouche
      • Aantal woonlagen 3 woonlagen
      • Voorzieningen Mechanische ventilatie, rolluiken, buitenzonwering, schuifpui, dakraam, glasvezel kabel, zonnepanelen

      Energie & Installatie

      • Energielabel B
      • Isolatie Muurisolatie, dubbel glas
      • Verwarming Cv ketel
      • Warm water Cv ketel
      • C.v.-ketel type Gas
      • C.v.-ketel bouwjaar 2024

      Tuin & Buitenruimte

      • Ligging In woonwijk
      • Hoofdtuin Achtertuin
      • Oppervlakte hoofdtuin ca. 63 m2
      • Achterom 1
      • Kwaliteit tuin Verzorgd

      Bergruimte

      • Schuur / berging Vrijstaand steen
      • Aantal schuren / bergingen 1
      • Voorzieningen Voorzien van elektra

      Parkeergelegenheid

      • Parkeerfaciliteiten Openbaar parkeren
      • Garage Aangebouwd steen

      In de buurt

          Ligging

          Bouwtypes